
Crynssenstraat 60-3
Amsterdam
- StatusBeschikbaar
- Vraagprijs€ 550.000,- k.k.
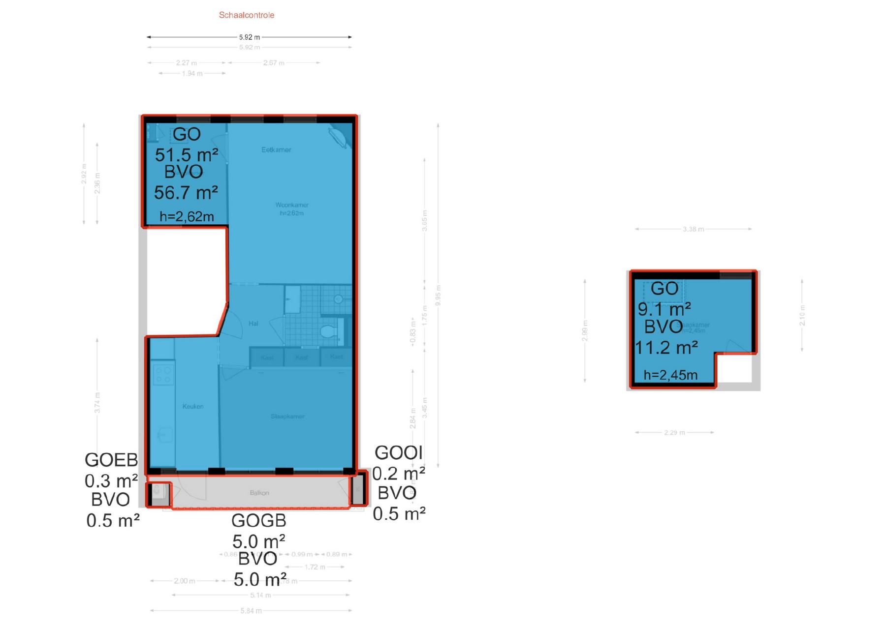
- Woonoppervlakte61 m²
- Aantal kamers4
Contact
ENGLISH VERSION BELOW
Ruim en licht 4 kamer appartement met balkon in geliefde De Baarsjes. Met gemeenschappelijk dakterras!
Aan de rustige en charmante Crynssenstraat bieden wij dit ruime en lichte appartement, met maar liefst drie slaap/ werkkamers en balkon aan. Het appartement is voorzien van dubbel glas en is gelegen op eigen grond!
INDELING Via de gemeenschappelijke entree op de begane grond bereikt u de woning op de derde verdieping. Vanuit de hal heeft u toegang tot bijna alle vertrekken. Centraal bevindt zich de moderne badkamer met toilet, inloopdouche en wastafel.
De lichte en royale woonkamer aan de voorzijde heeft een zijkamer die momenteel als slaapkamer in gebruik is. Vanuit deze ruimte leidt een interne trap naar de ruime slaap/werkkamer op de vierde verdieping, voorzien van veel licht en een speels karakter.
Aan de achterzijde vindt u de keuken, uitgerust met diverse inbouwapparatuur, en met toegang tot het balkon dat zich uitstrekt over de volle breedte van het appartement. Hier kunt u genieten van de zon en een groen uitzicht. Naast de keuken ligt een zeer goed bemeten hoofdslaapkamer met handige inbouwkasten en ramen die eveneens uitkijken op het balkon en de binnentuinen.
OMGEVING De Crynssenstraat ligt in de geliefde wijk De Baarsjes, een buurt die volop in ontwikkeling is en bekendstaat om zijn mix van rust en levendigheid. Op loopafstand vindt u een breed aanbod aan winkels en speciaalzaken voor de dagelijkse boodschappen, maar ook populaire koffietentjes, gezellige cafés en goede restaurants.
Voor ontspanning en recreatie liggen het Rembrandtpark en het Vondelpark om de hoek, waar u kunt wandelen, sporten of picknicken. Ook de groene kades langs de Admiralengracht bevinden zich op steenworp afstand.
BEREIKBAARHEID De woning is uitstekend bereikbaar: met de fiets bent u in 10 minuten in het centrum van Amsterdam en het Vondelpark. Diverse tram- en busverbindingen zijn op loopafstand aanwezig en de ring A10 bereikt u binnen enkele minuten met de auto.
BIJZONDERHEDEN
- Ruim appartement verdeeld over twee woonlagen;
- Maar liefst 3 slaap/werkkamers;
- Gelegen op eigen grond (dus geen erfpacht!);
- Bovenwoning, dus geen bovenburen;
- Lichte woonkamer en aparte keuken;
- Balkon (op het Oosten) over de volle breedte;
- Gemeenschappelijk dakterras;
- Gelegen in een bruisende en groene buurt;
- Uitstekend bereikbaar met zowel auto als openbaar vervoer;
- Dubbel glas;
- Energielabel F;
- Bijdrage VvE € 93,- per maand;
- Actieve, kleinschalige VvE (MJOP en reserve aanwezig);
- De ouderdoms- en niet zelfbewoningsclausule zijn van toepassing;
- Koopakte volgens ringmodel Amsterdam bij een Amsterdamse notaris naar keuze koper;
- Oplevering in overleg.
Een ideaal appartement voor wie op zoek is naar ruimte, comfort én de levendigheid van Amsterdam binnen handbereik!
Spacious and bright 4-room apartment with a balcony in the popular De Baarsjes neighborhood. Communal rooftopterrace!
On the quiet and charming Crynssenstraat, we offer this spacious and bright apartment with no fewer than three bedrooms/offices and a balcony. The apartment has double glazing and is located on freehold land!
LAYOUT The apartment is located on the third floor via the communal entrance on the ground floor. The hallway provides access to almost all rooms. The modern bathroom with a toilet, walk-in shower, and sink is centrally located.
The bright and spacious living room at the front of the building has a side room currently used as a bedroom. From this room, an internal staircase leads to the spacious bedroom/office on the fourth floor, which is full of light and has a playful character.
At the rear, you’ll find the kitchen, equipped with various built-in appliances, and with access to the balcony that spans the entire width of the apartment. Here you can enjoy the sun and a green view. Adjacent to the kitchen is a very well-sized master bedroom with handy built-in wardrobes and windows that look out parallel onto the balcony and the courtyard gardens.
AREA Crynssenstraat is located in the popular De Baarsjes neighborhood, a rapidly developing area known for its mix of tranquility and vibrancy. Within walking distance, you’ll find a wide range of shops and specialty stores for your daily groceries, as well as popular coffee shops, cozy cafés, and excellent restaurants.
For relaxation and recreation, Rembrandtpark and Vondelpark are just around the corner, perfect for walking, exercising, or picnicking. The green waterfront along the Admiralengracht canal is also just a stone’s throw away.
ACCESSIBILITY The property is easily accessible: Amsterdam city center and Vondelpark are just a 10-minute bike ride away. Various tram and bus connections are within walking distance, and the A10 ring road is just a few minutes away by car.
SPECIAL FEATURES
- Spacious apartment spread over two floors;
- No fewer than 3 bedrooms/offices;
- Situated on freehold land (so no leasehold!);
- Upperhouse, so no above neighbours;
- Bright living room and separate kitchen;
- Full-width balcony (east-facing);
- Communal rooftopterrace;
- Located in a vibrant and green neighborhood;
- Easily accessible by both car and public transport;
- Double glazing;
- Energy label F;
- Homeowners’ Association fee €93 per month;
- Active, small-scale Homeowners’ Association (Long-Term Maintenance Plan and reserve available);
- The age and non-owner-occupancy clauses apply;
- Purchase agreement according to the Amsterdam ring model, presented at an Amsterdam notary of the buyer’s choice;
- Delivery by mutual agreement.
DISCLAIMER Deze informatie is door ons met de nodige zorgvuldigheid samengesteld. Onzerzijds wordt echter geen enkele aansprakelijkheid aanvaard voor enige onvolledigheid, onjuistheid of anderszins, dan wel de gevolgen daarvan. Koper heeft zijn eigen onderzoek plicht naar alle zaken die voor hem of haar van belang zijn. Met betrekking tot deze woning is de makelaar adviseur van verkoper. Wij adviseren u een deskundige (NVM-)makelaar in te schakelen die u begeleidt bij het aankoopproces. Indien u specifieke wensen heeft omtrent de woning, adviseren wij u deze tijdig kenbaar te maken aan uw aankopend makelaar en hiernaar zelfstandig onderzoek te (laten) doen. Indien u geen deskundige vertegenwoordiger inschakelt, acht u zich volgens de wet deskundige genoeg om alle zaken die van belang zijn te kunnen overzien. Van toepassing zijn de NVM voorwaarden.
NEN CLAUSULE De gebruiksoppervlakte is berekend conform de branche vastgestelde NEN 2580- norm. De oppervlakte kan derhalve afwijken van vergelijkbare panden en/of oude referenties. Dit heeft vooral te maken met deze (nieuwe) rekenmethode. Koper verklaart voldoende te zijn geïnformeerd over de hiervoor bedoelde normering. Verkoper en diens makelaar doen hun uiterste best de juiste oppervlakte en inhoud te berekenen aan de hand van eigen metingen en dit zoveel mogelijk te ondersteunen door het plaatsen van plattegronden met maatvoering. Mocht de maatvoering onverhoopt niet (volledig) overeenkomstig de normering zijn vastgesteld, wordt dit door koper aanvaard. Koper is voldoende in de gelegenheid gesteld de maatvoering zelf te (laten) controleren. Verschillen in de opgegeven maat en grootte geven geen der partijen enig recht, zo ook niet op aanpassing van de koopsom. Verkoper en diens makelaar aanvaarden geen enkele aansprakelijkheid in deze.
Maak een afspraak