Terug naar het overzicht

Da Costakade 53-1

Amsterdam

  • StatusVerkocht onder voorbehoud
  • Vraagprijs€ 660.000,- k.k.
  • Woonoppervlakte66 m²
  • Aantal kamers3
Maak een afspraak

Contact

AMSTERDAM Da Costakade 53-1
    Terug naar het overzicht

    Da Costakade 53-1

    Amsterdam

    • StatusVerkocht onder voorbehoud
    • Vraagprijs€ 660.000,- k.k.
    • Woonoppervlakte66 m²
    • Aantal kamers3
    Maak een afspraak

    Contact

    View this page in English

    Turnkey 3-kamerappartement van ca. 66 m² met royaal balkon aan de Da Costagracht – Amsterdam Oud-West

    Op een geliefde locatie in Amsterdam Oud-West ligt dit hoogwaardig afgewerkte en instapklare appartement van circa 66 m², met twee slaapkamers en een ruim balkon. Gelegen aan het rustige deel van de Da Costakade, met vrij uitzicht over het water en de De Clercqstraat, combineert deze woning comfort, stijl en een uitstekende ligging.

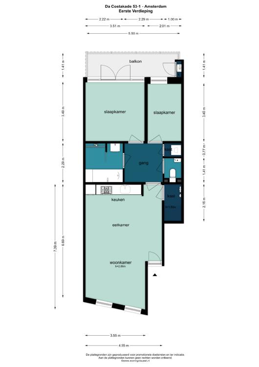
    Indeling

    Via het portiek bereikt u de eigen entree op de eerste verdieping. De lichte woonkamer bevindt zich aan de voorzijde van de woning en biedt een prachtig uitzicht over de Da Costagracht. Dankzij de prettige maatvoering en hoge plafonds is de ruimte speels en flexibel in te delen.

    De moderne, matwitte keuken is greeploos uitgevoerd en voorzien van inbouwapparatuur waaronder een inductiekookplaat, combimagnetron, koelkast en vaatwasser.

    Aan de rustige achterzijde van het appartement bevinden zich twee goed bemeten slaapkamers. De royale hoofdslaapkamer geeft via openslaande deuren toegang tot het ruime balkon, dat zich over de volledige breedte van het pand uitstrekt. Ook de tweede slaapkamer is uitstekend van formaat en multifunctioneel inzetbaar, bijvoorbeeld als werk- of logeerkamer.

    Centraal in de woning ligt de luxe badkamer, uitgerust met een inloopdouche, ligbad en dubbele wastafel. Vanuit de hal zijn tevens een separaat toilet en een praktische kast voor wasmachine en droger bereikbaar.

    Omgeving

    De Da Costabuurt is een van de meest geliefde buurten van Amsterdam Oud-West en vormt de perfecte schakel tussen de Jordaan en de levendige Ten Katebuurt – truly the best of both worlds. Dit deel van de Da Costakade biedt een fijne woonomgeving met tal van winkels, koffietentjes, cafés en restaurants op loopafstand. De Hallen liggen letterlijk om de hoek.

    Ondanks de centrale ligging is de straat rustig doordat er geen doorgaand verkeer is. Supermarkten, scholen en kinderopvang bevinden zich in de directe omgeving. Het centrum van Amsterdam is binnen vijf minuten fietsen bereikbaar, de Ring A10 in circa vijftien minuten met de auto en het Centraal Station in minder dan tien minuten fietsen. Voor ontspanning ligt u precies tussen het Vondelpark en het Erasmuspark in. Met diverse tramverbindingen om de hoek is de rest van de stad snel en eenvoudig te bereiken.

    Bijzonderheden -Woonoppervlakte ca. 66 m² conform NEN2580 meetrapport; -Ruim balkon over de volledige breedte van het pand; -Twee slaapkamers; -Hoge plafonds; -Praktische opbergkast naast de living; -Instapklaar en hoogwaardig afgewerkt; -Pand in 2020/2021 geheel gerenoveerd inclusief nieuwe fundering; -Energielabel C; -Voortdurende erfpacht (AB2000, gemeente Amsterdam) met jaarlijkse indexering; -Huidige canon € 1.563,54, tijdvak t/m oktober 2070; -VvE-bijdrage: € 75,- per maand; -Oplevering in overleg.

    DISCLAIMER Deze informatie is door ons met de nodige zorgvuldigheid samengesteld. Onzerzijds wordt echter geen enkele aansprakelijkheid aanvaard voor enige onvolledigheid, onjuistheid of anderszins, dan wel de gevolgen daarvan. Alle opgegeven maten en oppervlakten zijn indicatief. Koper heeft zijn eigen onderzoekplicht naar alle zaken die voor hem of haar van belang zijn. Met betrekking tot deze woning is de makelaar adviseur van verkoper. Wij adviseren u een deskundige (NVM-)makelaar in te schakelen die u begeleidt bij het aankoopproces. Indien u specifieke wensen heeft omtrent de woning, adviseren wij u deze tijdig kenbaar te maken aan uw aankopend makelaar en hiernaar zelfstandig onderzoek te (laten) doen. Indien u geen deskundige vertegenwoordiger inschakelt, acht u zich volgens de wet deskundige genoeg om alle zaken die van belang zijn te kunnen overzien. Van toepassing zijn de NVM voorwaarden.

    NEN-CLAUSULE De gebruiksoppervlakte is berekend conform de branchebrede meetinstructie op basis van de NEN 2580- norm. De oppervlakte kan derhalve afwijken van vergelijkbare panden en/of oude referenties. Dit heeft vooral te maken met deze (nieuwe) rekenmethode. Koper verklaart voldoende te zijn geïnformeerd over de hiervoor bedoelde normering. Verkoper en diens makelaar doen hun uiterste best de juiste oppervlakte en inhoud te berekenen aan de hand van eigen metingen en dit zoveel mogelijk te ondersteunen door het plaatsen van plattegronden met maatvoering. Mocht de maatvoering onverhoopt niet (volledig) overeenkomstig de normering zijn vastgesteld, wordt dit door koper aanvaard. Koper is voldoende in de gelegenheid gesteld de maatvoering zelf te (laten) controleren. Verschillen in de opgegeven maat en grootte geven geen der partijen enig recht, zo ook niet op aanpassing van de koopsom. Verkoper en diens makelaar aanvaarden geen enkele aansprakelijkheid in deze.

    Maak een afspraak

    Recent bekeken