Terug naar het overzicht

Jozef Israëlskade 10 C

Amsterdam

  • StatusVerkocht onder voorbehoud
  • Vraagprijs€ 500.000,- k.k.
  • Woonoppervlakte55 m²
  • Aantal kamers3
Maak een afspraak

Contact

AMSTERDAM Jozef Israëlskade 10 C
    Terug naar het overzicht

    Jozef Israëlskade 10 C

    Amsterdam

    • StatusVerkocht onder voorbehoud
    • Vraagprijs€ 500.000,- k.k.
    • Woonoppervlakte55 m²
    • Aantal kamers3
    Maak een afspraak

    Contact

    View this page in English

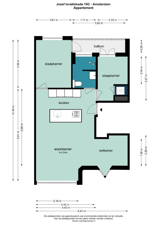
    JOZEF ISRAELSKADE 10-C, 1072 RT AMSTERDAM

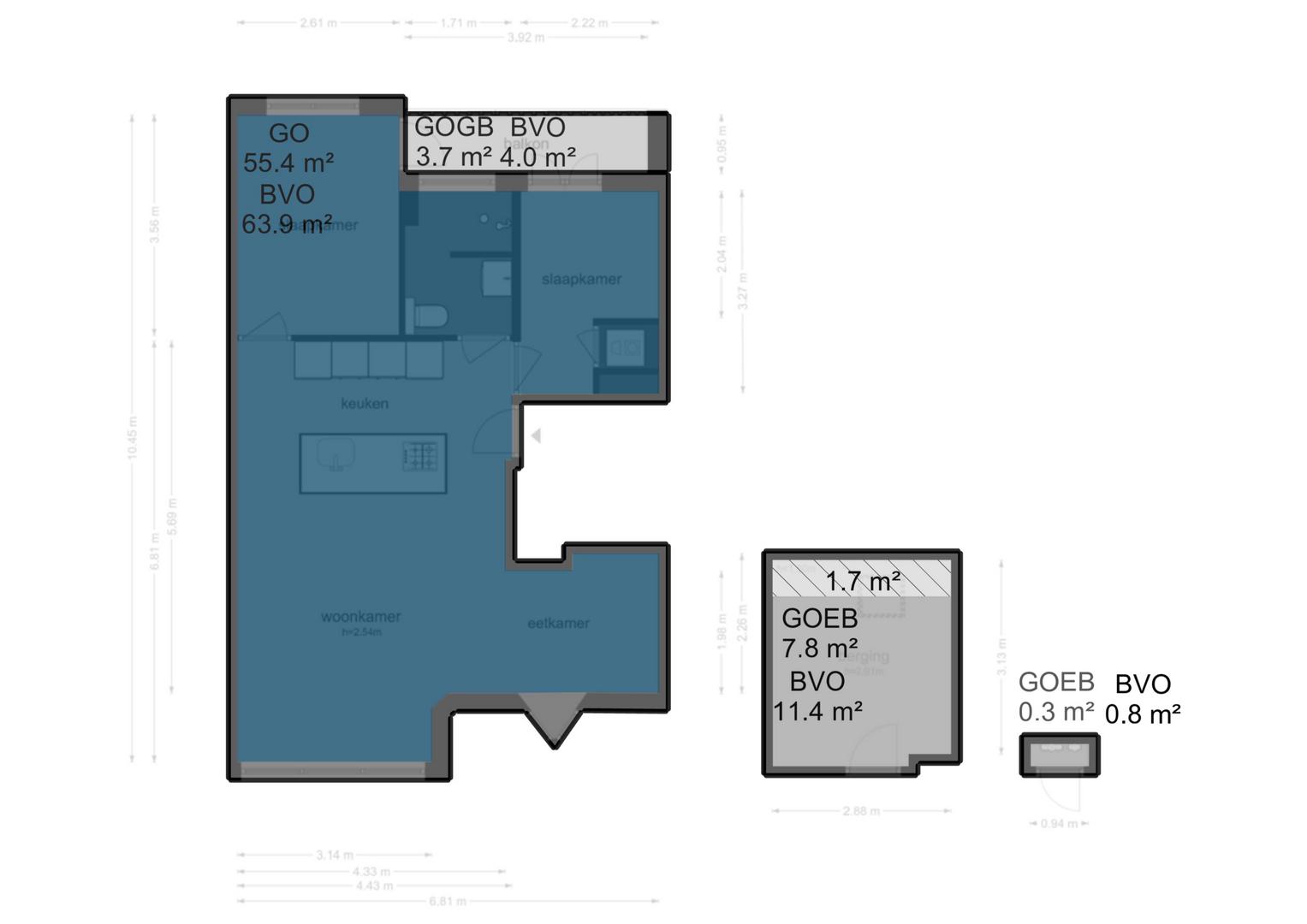
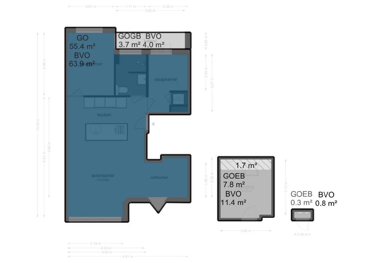
    Heerlijk licht en zeer sfeervol 3-kamer appartement met uitzicht over het water. De woning heeft twee slaapkamers. Dit appartement van circa 55m² is gelegen op de tweede verdieping en een berging van ca. 8m² en dat midden in de levendige wijk de Pijp. De erfpacht is eeuwigdurend afgekocht!

    INDELING Via de entree betreedt men de woning op de tweede verdieping. Ruime en lichte woonkamer met open keuken met kookeiland. De ruimte kenmerkt zich door het vele daglicht en het weidse uitzicht op het Amstelkanaal. De keuken is van alle gemakken voorzien; 5 pits gasfornuis met rvs afzuigkap, oven, combioven, vaatwasser, grote koelkast met aparte vriezer en zeer veel opberg- en werkruimte. Aan de achterzijde bevinden zich 2 goed bemeten slaapkamers die beide toegang hebben tot het balkon. De badkamer is voorzien van inloopdouche, wc en wastafel met wastafelmeubel. In de tweede slaapkamer bevindt zich een inbouwkast met aansluiting voor wasmachine en droger.

    Een ruime berging van ca. 8m² met daglicht gelegen op de zolderverdieping.

    OMGEVING De Jozef Israelkade is een fijne straat aan het water in een levendige buurt in de populaire Pijp in Amsterdam. Nabij het van der Helstplein en het Sarphatipark! Voor uw dagelijkse boodschappen vindt u de AH op loopafstand op het Cornelis Troostplein. In de nabijheid vindt je natuurlijk ook de beroemde Albert Cuypmarkt en binnen enkele minuten afstand van leuke koffietentjes, wijnbarren en restaurantjes waar de Pijp zo bekend om is. De woning is op loopafstand van de winkelstraten Ferdinand Bolstraat en Gerard Doustraat en een paar minuten fietsen van hartje Centrum Amsterdam. Het appartement heeft een prima ligging ten opzichte van het openbaar vervoer (metro, tram 3 en 12, buslijn 65). Met de nieuwe metro ‘Noord-Zuid lijn’ bent u binnen enkele minuten op het Centraal station of bij de Zuidas. Ook is het appartement gunstig gelegen ten opzichte van de uitvalswegen A2 en A10.

    BIJZONDERHEDEN

    • Appartementsrecht, ca. 55m² (NEN-2580 meetrapport aanwezig)
    • Twee goed formaat slaapkamers
    • Vrij uitzicht over het water
    • Ruimte berging met daglicht op de zolderverdieping ca. 8m²
    • De erfpacht is eeuwigdurend afgekocht
    • Professioneel beheerde en actieve VvE met MJOP
    • Maandelijkse bijdrage VvE €167,10
    • De ’niet-zelfbewoningsclausule’ is van toepassing
    • Oplevering in overleg, kan snel!

    DISCLAIMER Deze informatie is door ons met de nodige zorgvuldigheid samengesteld. Onzerzijds wordt echter geen enkele aansprakelijkheid aanvaard voor enige onvolledigheid, onjuistheid of anderszins, dan wel de gevolgen daarvan. Koper heeft zijn eigen onderzoek plicht naar alle zaken die voor hem of haar van belang zijn. Met betrekking tot deze woning is de makelaar adviseur van verkoper. Wij adviseren u een deskundige (NVM-)makelaar in te schakelen die u begeleidt bij het aankoopproces. Indien u specifieke wensen heeft omtrent de woning, adviseren wij u deze tijdig kenbaar te maken aan uw aankopend makelaar en hiernaar zelfstandig onderzoek te (laten) doen. Indien u geen deskundige vertegenwoordiger inschakelt, acht u zich volgens de wet deskundige genoeg om alle zaken die van belang zijn te kunnen overzien. Van toepassing zijn de NVM voorwaarden.

    NEN CLAUSULE De gebruiksoppervlakte is berekend conform de branche vastgestelde NEN 2580- norm. De oppervlakte kan derhalve afwijken van vergelijkbare panden en/of oude referenties. Dit heeft vooral te maken met deze (nieuwe) rekenmethode. Koper verklaart voldoende te zijn geïnformeerd over de hiervoor bedoelde normering. Verkoper en diens makelaar doen hun uiterste best de juiste oppervlakte en inhoud te berekenen aan de hand van eigen metingen en dit zoveel mogelijk te ondersteunen door het plaatsen van plattegronden met maatvoering. Mocht de maatvoering onverhoopt niet (volledig) overeenkomstig de normering zijn vastgesteld, wordt dit door koper aanvaard. Koper is voldoende in de gelegenheid gesteld de maatvoering zelf te (laten) controleren. Verschillen in de opgegeven maat en grootte geven geen der partijen enig recht, zo ook niet op aanpassing van de koopsom. Verkoper en diens makelaar aanvaarden geen enkele aansprakelijkheid in deze.

    Maak een afspraak

    Recent bekeken