Terug naar het overzicht

Kerkstraat 70 E

Amsterdam

  • StatusVerkocht onder voorbehoud
  • Vraagprijs€ 500.000,- k.k.
  • Woonoppervlakte69 m²
  • Aantal kamers3
Maak een afspraak

Contact

AMSTERDAM Kerkstraat 70 E
    Terug naar het overzicht

    Kerkstraat 70 E

    Amsterdam

    • StatusVerkocht onder voorbehoud
    • Vraagprijs€ 500.000,- k.k.
    • Woonoppervlakte69 m²
    • Aantal kamers3
    Maak een afspraak

    Contact

    View this page in English

    KERKSTRAAT 70-E, 1017 GN AMSTERDAM

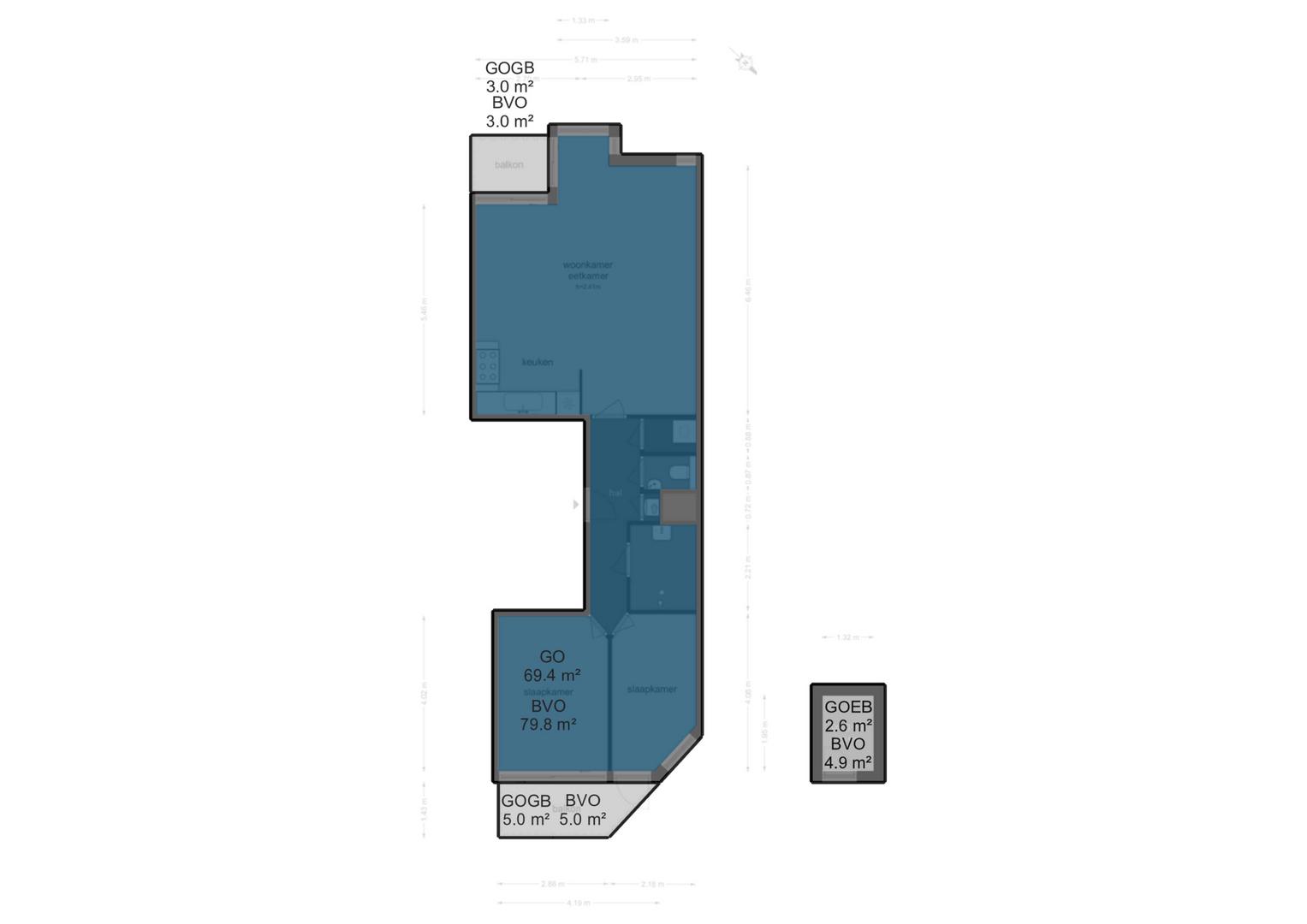
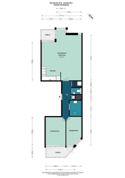
    Gelegen op toplocatie in het hart van Amsterdam. Een 3 kamer appartement van ruim 69m² (conform NEN2580), met twee slaapkamers, twee balkons en een ruime berging. De woning is gelegen op eigen grond en kan geheel naar wens gemoderniseerd worden, kortom dit appartement heeft eindeloos veel potentie!

    INDELING Via de nette, gezamenlijke entree op de begane grond bereik je de woning op de tweede verdieping. Je komt binnen in een centrale hal die toegang biedt tot alle vertrekken. Aan de voorzijde bevindt zich die ruime woonkamer met open keuken en aangrenzend een balkon met zicht op de Kerkstraat. Aan de achterzijde bevinden zich tweed goed bemeten slaapkamers met beide toegang tot het balkon aan de achterzijde. Badkamer met inloopdouche en wastafel. Separaat toilet met fontein en ruime berging met aansluiting voor wasmachine en droger. Op de begane grond is er een ruime externe berging en plek om de fiets te stallen.

    LIGGING Wonen aan de charmante Kerkstraat betekent genieten van de rust van een zijstraat én de levendigheid van de stad op steenworp afstand. Binnen enkele minuten wandel je naar het Vondelpark, de Jordaan of het Museumplein. In de directe omgeving vind je tal van hippe cafés, uitstekende restaurants en unieke boetieks in de Leidsestraat, de 9 Straatjes en op de Elandsgracht.

    Openbaar vervoer is uitstekend: de tramhalte is om de hoek, metrostation Vijzelgracht ligt op 7 minuten lopen en je bent in slechts 10 minuten fietsen bij Amsterdam Centraal. Met de auto zit je zó op de Centrumring (Amstel/Stadhouderskade).

    BIJZONDERHEDEN

    • Woonoppervlakte: 69,4 m² (NEN2580)
    • Gelegen op eigen grond (dus géén erfpacht!)
    • Energielabel B
    • Twee ruime slaapkamers en twee balkons
    • Grote berging op de begane grond
    • Kleinschalige professioneel beheerde VvE
    • De servicekosten bedragen €256,28,- per maand
    • Er is een lift aanwezig
    • Onder voorbehoud goedkeuring van De Rechtbank Amsterdam.
    • De ‘As is, Where is’ is van toepassing en zal worden opgenomen in de koopakte
    • Oplevering in overleg.

    DISCLAIMER Deze informatie is door ons met de nodige zorgvuldigheid samengesteld. Onzerzijds wordt echter geen enkele aansprakelijkheid aanvaard voor enige onvolledigheid, onjuistheid of anderszins, dan wel de gevolgen daarvan. Koper heeft zijn eigen onderzoek plicht naar alle zaken die voor hem of haar van belang zijn. Met betrekking tot deze woning is de makelaar adviseur van verkoper. Wij adviseren u een deskundige (NVM-)makelaar in te schakelen die u begeleidt bij het aankoopproces. Indien u specifieke wensen heeft omtrent de woning, adviseren wij u deze tijdig kenbaar te maken aan uw aankopend makelaar en hiernaar zelfstandig onderzoek te (laten) doen. Indien u geen deskundige vertegenwoordiger inschakelt, acht u zich volgens de wet deskundige genoeg om alle zaken die van belang zijn te kunnen overzien. Van toepassing zijn de NVM voorwaarden.

    NEN CLAUSULE De gebruiksoppervlakte is berekend conform de branche vastgestelde NEN 2580- norm. De oppervlakte kan derhalve afwijken van vergelijkbare panden en/of oude referenties. Dit heeft vooral te maken met deze (nieuwe) rekenmethode. Koper verklaart voldoende te zijn geïnformeerd over de hiervoor bedoelde normering. Verkoper en diens makelaar doen hun uiterste best de juiste oppervlakte en inhoud te berekenen aan de hand van eigen metingen en dit zoveel mogelijk te ondersteunen door het plaatsen van plattegronden met maatvoering. Mocht de maatvoering onverhoopt niet (volledig) overeenkomstig de normering zijn vastgesteld, wordt dit door koper aanvaard. Koper is voldoende in de gelegenheid gesteld de maatvoering zelf te (laten) controleren. Verschillen in de opgegeven maat en grootte geven geen der partijen enig recht, zo ook niet op aanpassing van de koopsom. Verkoper en diens makelaar aanvaarden geen enkele aansprakelijkheid in deze.

    DISCLAIMER This information has been compiled by us with the necessary care. However, on our part no liability is accepted for any incompleteness, inaccuracy or otherwise, nor the consequences thereof. The buyer has his or her own obligation to investigate all matters that are of importance to him/her. With regard to this property the broker is an advisor to the seller. We advise you to employ an expert (NVM) broker who guides you during the purchase process. If you have specific wishes with regard to the property, we advise you to make this known to your purchasing broker in good time and to do research (or have research done) independently. If you do not employ an expert representative, you, according to the law, consider yourself competent enough to be able to oversee all matters that are of importance. The terms and conditions of the NVM apply.

    NEN CLAUSE The usable area is calculated in accordance with the industry adopted NEN 2580 standard. Therefore, the surface can deviate from similar properties and/or old references. This has mainly to do with this (new) calculation method. Buyer declares to have been sufficiently informed about the aforementioned standards. The seller and his broker will do their utmost to calculate the right surface area and content based on their own measurements and support this as much as possible by placing floor plans with dimensions. In the unlikely event that the dimensions are not (completely) determined in accordance with the standards, this is accepted by the buyer. The buyer has been given sufficient opportunity to check the dimensions themselves or have them checked. Differences in the specified size do not give any of the parties any right, nor can they be used to discuss an adjustment of the purchase price. The seller and his broker do not accept any liability in this.

    Maak een afspraak

    Recent bekeken