Terug naar het overzicht

Nassaukade 147 G

Amsterdam

  • StatusBeschikbaar
  • Vraagprijs€ 400.000,- k.k.
  • Woonoppervlakte43 m²
  • Aantal kamers2
Maak een afspraak

Contact

AMSTERDAM Nassaukade 147 G
    Terug naar het overzicht

    Nassaukade 147 G

    Amsterdam

    • StatusBeschikbaar
    • Vraagprijs€ 400.000,- k.k.
    • Woonoppervlakte43 m²
    • Aantal kamers2
    Maak een afspraak

    Contact

    View this page in English

    Nassaukade 147-G, 1052 EH Amsterdam

    Op een goede locatie aan de Singelgracht nabij de Jordaan gelegen bieden wij een sfeervol appartement aan. In 2010 is de fundering hersteld & de erfpacht is eeuwigdurend afgekocht! De woning is gelegen aan de rustige achterzijde met weids uitzicht.

    Locatie Gelegen in het hart van Amsterdam, tegenover de Jordaan met diverse winkels, restaurants en uitgaansgelegenheden. In de buurt van het Hugo de Grootplein en de Rozengracht zijn dagelijkse voorzieningen te vinden, zoals supermarkten en cafés. De Kinkerstraat met de gezellige Ten Katemarkt en foodhallen biedt ook mogelijkheden voor dagelijkse boodschappen. Café Waterkant met een heerlijk terras ligt schuin tegenover. De Noordermarkt, het Marnixbad, de Westerstraat, het Anne Frankhuis en De Negen Straatjes zijn op loopafstand en voor een ommetje is schuin aan de overzijde van de straat een mooie wandelboulevard aangelegd. Diverse openbaar vervoer opties zijn praktisch voor de deur, waaronder trams 3, 10, 13, 14 en 17, en bussen vanaf het busstation op de Marnixstraat.

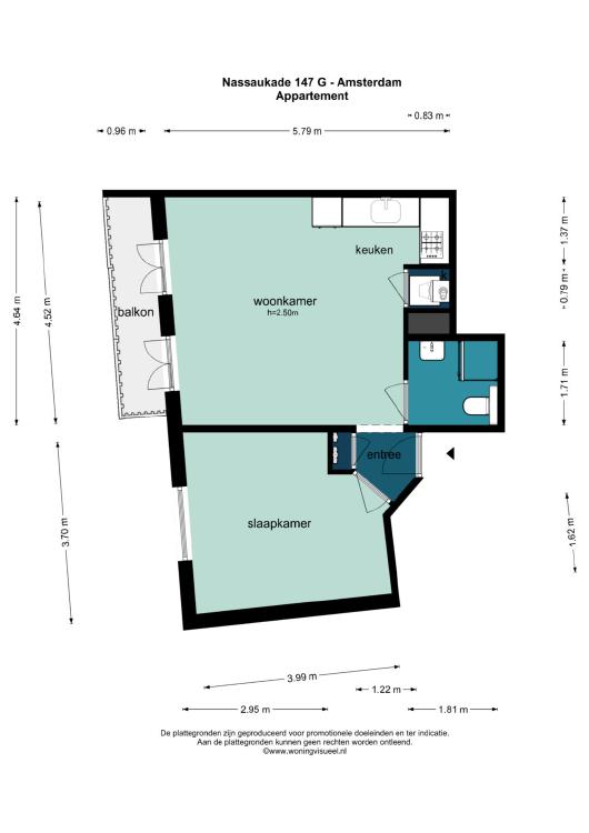
    Indeling: Een heerlijk lichte woonkamer met de openslaande deuren naar het balkon, welke is gelegen op het westen. Ondanks dat je middenin de stad zit, is het erg rustig aan deze zijde. De luxe open keuken is alles wat je mag verwachten van een keuken uit deze tijd. Deze is voorzien van een koelvriescombinatie, vaatwasser, 4-pitsgaskookplaat en combimagnetron. De lichte slaapkamer is net zoals de rest van het huis in neutrale kleurstelling, zodat je volledig je eigen smaak kan toevoegen in de woning. De goed bemeten kamer heeft genoeg plek voor een tweepersoonsbed en een grote kledingkast. Door het gehele appartement ligt een eikenhouten vloer. De moderne badkamer heeft alle voorzieningen die je nodig hebt. Overal is over nagedacht, de badkamer hoef je niet te delen met de wasmachine, want daar is op de overloop een handige opbergkast voor, waar tevens de CV opstelling te vinden is.

    Bijzonderheden:

    • Woonoppervlak: 43m² (Conform NEN-2580 meetrapport)
    • De erfpacht is eeuwigdurend afgekocht!
    • Het pand is compleet gerenoveerd in 2010 en heeft een nieuwe fundering
    • Het appartement bevindt zich aan de rustige achterzijde met veel lichtinval
    • Het zonnige balkon, dat over de hele breedte van de woning loopt, biedt een prachtig uitzicht op de groene binnentuin en is perfect voor het genieten van een hele middag zon
    • Drie keer openslaande draai/kiepdeuren naar het balkon voorzien van dubbel glas
    • Actieve Vereniging van Eigenaars, welke professioneel wordt beheerd
    • Maandelijkse servicekosten bedragen €86,67
    • De ’niet-zelfbewoning & As Is, Where is’ clausule zijn van toepassing.
    • Transport, in overleg en kan snel!

    DISCLAIMER Deze informatie is door ons met de nodige zorgvuldigheid samengesteld. Onzerzijds wordt echter geen enkele aansprakelijkheid aanvaard voor enige onvolledigheid, onjuistheid of anderszins, dan wel de gevolgen daarvan. Koper heeft zijn eigen onderzoek plicht naar alle zaken die voor hem of haar van belang zijn. Met betrekking tot deze woning is de makelaar adviseur van verkoper. Wij adviseren u een deskundige (NVM-)makelaar in te schakelen die u begeleidt bij het aankoopproces. Indien u specifieke wensen heeft omtrent de woning, adviseren wij u deze tijdig kenbaar te maken aan uw aankopend makelaar en hiernaar zelfstandig onderzoek te (laten) doen. Indien u geen deskundige vertegenwoordiger inschakelt, acht u zich volgens de wet deskundige genoeg om alle zaken die van belang zijn te kunnen overzien. Van toepassing zijn de NVM voorwaarden.

    NEN CLAUSULE De gebruiksoppervlakte is berekend conform de branche vastgestelde NEN 2580- norm. De oppervlakte kan derhalve afwijken van vergelijkbare panden en/of oude referenties. Dit heeft vooral te maken met deze (nieuwe) rekenmethode. Koper verklaart voldoende te zijn geïnformeerd over de hiervoor bedoelde normering. Verkoper en diens makelaar doen hun uiterste best de juiste oppervlakte en inhoud te berekenen aan de hand van eigen metingen en dit zoveel mogelijk te ondersteunen door het plaatsen van plattegronden met maatvoering. Mocht de maatvoering onverhoopt niet (volledig) overeenkomstig de normering zijn vastgesteld, wordt dit door koper aanvaard. Koper is voldoende in de gelegenheid gesteld de maatvoering zelf te (laten) controleren. Verschillen in de opgegeven maat en grootte geven geen der partijen enig recht, zo ook niet op aanpassing van de koopsom. Verkoper en diens makelaar aanvaarden geen enkele aansprakelijkheid in deze.

    DISCLAIMER This information has been compiled by us with the necessary care. However, on our part no liability is accepted for any incompleteness, inaccuracy or otherwise, nor the consequences thereof. The buyer has his or her own obligation to investigate all matters that are of importance to him/her. With regard to this property the broker is an advisor to the seller. We advise you to employ an expert (NVM) broker who guides you during the purchase process. If you have specific wishes with regard to the property, we advise you to make this known to your purchasing broker in good time and to do research (or have research done) independently. If you do not employ an expert representative, you, according to the law, consider yourself competent enough to be able to oversee all matters that are of importance. The terms and conditions of the NVM apply.

    NEN CLAUSE The usable area is calculated in accordance with the industry adopted NEN 2580 standard. Therefore, the surface can deviate from similar properties and/or old references. This has mainly to do with this (new) calculation method. Buyer declares to have been sufficiently informed about the aforementioned standards. The seller and his broker will do their utmost to calculate the right surface area and content based on their own measurements and support this as much as possible by placing floor plans with dimensions. In the unlikely event that the dimensions are not (completely) determined in accordance with the standards, this is accepted by the buyer. The buyer has been given sufficient opportunity to check the dimensions themselves or have them checked. Differences in the specified size do not give any of the parties any right, nor can they be used to discuss an adjustment of the purchase price. The seller and his broker do not accept any liability in this.

    Maak een afspraak

    Recent bekeken