
Rinus Michelslaan 203
Amsterdam
- StatusBeschikbaar
- Vraagprijs€ 535.000,- k.k.
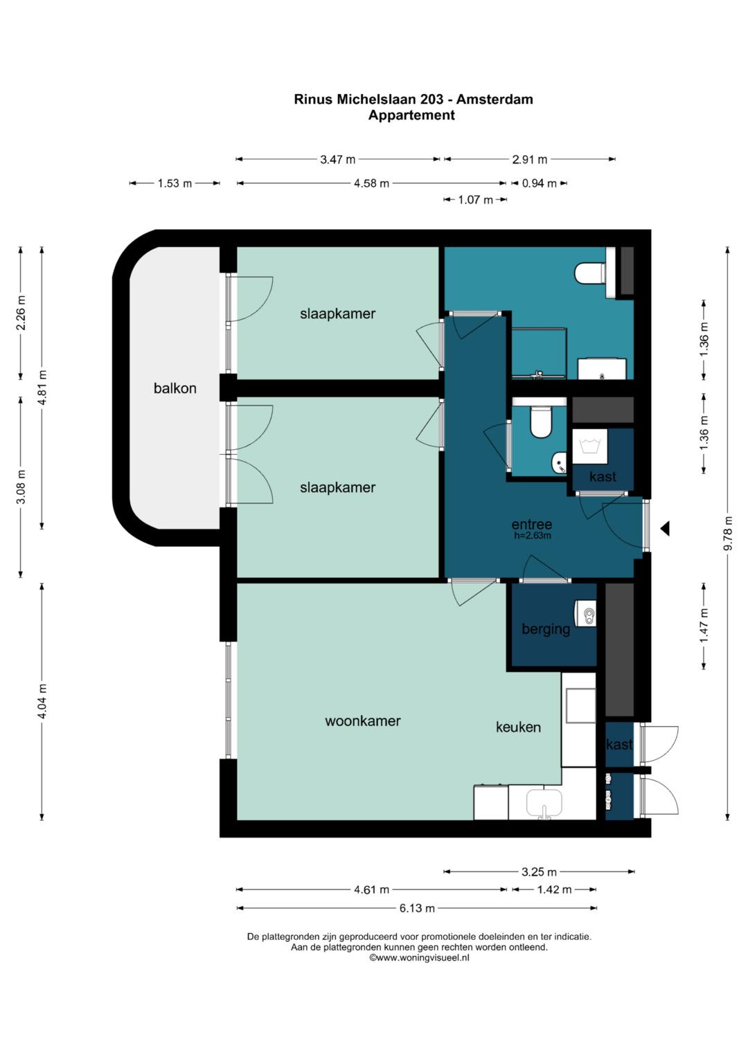
- Woonoppervlakte63 m²
- Aantal kamers3
Contact
Riant, zeer comfortabel, instapklaar en energiezuinig appartement met een woonoppervlak van ca. 63 m², 2 slaapkamers, een ruim balkon en een parkeerplek (separaat te koop). Het zeer goed afgewerkte en sfeervolle appartement bevindt zich in het duurzame complex de Spartaan in de jonge woonwijk Laan van Spartaan in Amsterdam West en is opgeleverd in 2020.
INDELING
Verzorgde gemeenschappelijke entree, trap of lift naar het appartement. Ruime hal met toegang tot een wasruimte, separaat toilet en een berging. Vervolgens betreedt men de woonkamer met open keuken die voorzien is van inbouwapparatuur. De twee goed bemeten slaapkamers hebben beide toegang tot het aangename en ruime balkon met uitzicht over de schitterende binnentuin. Tot slot de badkamer met royale inloopdouche, dubbele wastafel en tweede toilet.
Er is tevens een eigen berging, een gemeenschappelijke fietsenstalling en een (privé)parkeerplek in de parkeergarage. Deze parkeerplek is separaat te koop, vraagprijs € 32.500,= k.k..
Kortom, een zeer compleet en zorgvuldig onderhouden appartement met 2 goede slaapkamers, een fijne buitenruimte en een parkeerplek.
OMGEVING
De bereikbaarheid van het appartement is uitstekend, gelegen om de hoek van de Jan van Galenstraat en het OLVG Ziekenhuis. Met de auto rijd je binnen 2 minuten de ring A10 op. Schiphol is binnen 15 minuten te bereiken met zowel het OV als met de auto.
Laan van Spartaan is een wijk waar wonen, werken, culturele en maatschappelijke voorzieningen, zorg en sport met elkaar worden gecombineerd. Alle voorzieningen voor je dagelijkse boodschappen binnen handbereik en er is een ruim aanbod aan horecagelegenheden zoals Boes & Beis, The Social Hub en het levendige Mercatorplein. Wandelen, sporten of zwemmen doe je in het Rembrandtpark en Erasmuspark of bij de Sloterplas.
Voldoende scholen en kinderopvang in de nabije omgeving en op de fiets binnen 10 minuten in het levendige hart van Amsterdam.
BIJZONDERHEDEN
- Woonoppervlak ca. 63 m² conform NEN2580;
- Instapklaar en goed afgewerkt;
- Gemeentelijke erfpacht afgekocht tot 30-09-2066;
- Energielabel A;
- HR++ glas;
- Vloerverwarming;
- Parkeerplek in de garage, vraagprijs € 32.500,= k.k.;
- Gemeenschappelijke binnentuin;
- Actieve VvE, professioneel beheerd. Servicekosten bedragen € 116,- per maand;
- Oplevering in overleg.
DISCLAIMER Deze informatie is door ons met de nodige zorgvuldigheid samengesteld. Onzerzijds wordt echter geen enkele aansprakelijkheid aanvaard voor enige onvolledigheid, onjuistheid of anderszins, dan wel de gevolgen daarvan. Koper heeft zijn eigen onderzoek plicht naar alle zaken die voor hem of haar van belang zijn. Met betrekking tot deze woning is de makelaar adviseur van verkoper. Wij adviseren u een deskundige (NVM-)makelaar in te schakelen die u begeleidt bij het aankoopproces. Indien u specifieke wensen heeft omtrent de woning, adviseren wij u deze tijdig kenbaar te maken aan uw aankopend makelaar en hiernaar zelfstandig onderzoek te (laten) doen. Indien u geen deskundige vertegenwoordiger inschakelt, acht u zich volgens de wet deskundige genoeg om alle zaken die van belang zijn te kunnen overzien. Van toepassing zijn de NVM voorwaarden.
NEN CLAUSULE De gebruiksoppervlakte is berekend conform de branche vastgestelde NEN 2580- norm. De oppervlakte kan derhalve afwijken van vergelijkbare panden en/of oude referenties. Dit heeft vooral te maken met deze (nieuwe) rekenmethode. Koper verklaart voldoende te zijn geïnformeerd over de hiervoor bedoelde normering. Verkoper en diens makelaar doen hun uiterste best de juiste oppervlakte en inhoud te berekenen aan de hand van eigen metingen en dit zoveel mogelijk te ondersteunen door het plaatsen van plattegronden met maatvoering. Mocht de maatvoering onverhoopt niet (volledig) overeenkomstig de normering zijn vastgesteld, wordt dit door koper aanvaard. Koper is voldoende in de gelegenheid gesteld de maatvoering zelf te (laten) controleren. Verschillen in de opgegeven maat en grootte geven geen der partijen enig recht, zo ook niet op aanpassing van de koopsom. Verkoper en diens makelaar aanvaarden geen enkele aansprakelijkheid in deze.
Maak een afspraak