Terug naar het overzicht

Roelof Hartstraat 38-3

Amsterdam

  • StatusVerkocht onder voorbehoud
  • Vraagprijs€ 1.095.000,- k.k.
  • Woonoppervlakte136 m²
  • Aantal kamers6
Maak een afspraak

Contact

AMSTERDAM Roelof Hartstraat 38-3
    Terug naar het overzicht

    Roelof Hartstraat 38-3

    Amsterdam

    • StatusVerkocht onder voorbehoud
    • Vraagprijs€ 1.095.000,- k.k.
    • Woonoppervlakte136 m²
    • Aantal kamers6
    Maak een afspraak

    Contact

    View this page in English

    Fantastisch zes kamer appartement van ruim 136 m² (conform NEN2580) met heel veel potentie, verdeeld over twee woonlagen met drie balkons gelegen op eigen grond op het “Duivelseiland”; een van de meest gewilde buurten van Amsterdam Zuid!

    Het dubbele bovenhuis biedt een koper diverse mogelijkheden: Ondersplitsen (vergunningplichtig) of kamerverhuur behoort tot de mogelijkheden.

    *ENGLISH TRANSLATION BELOW

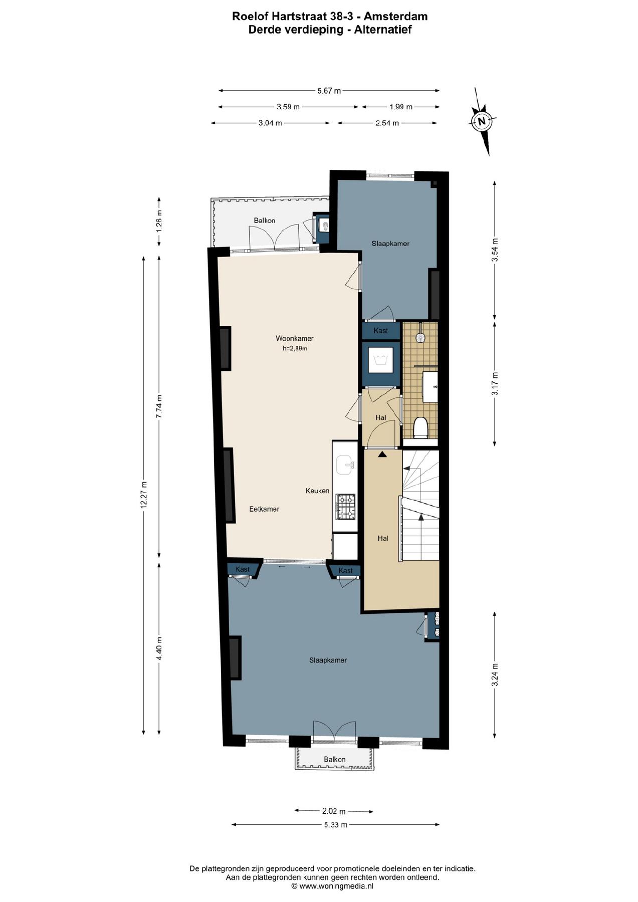
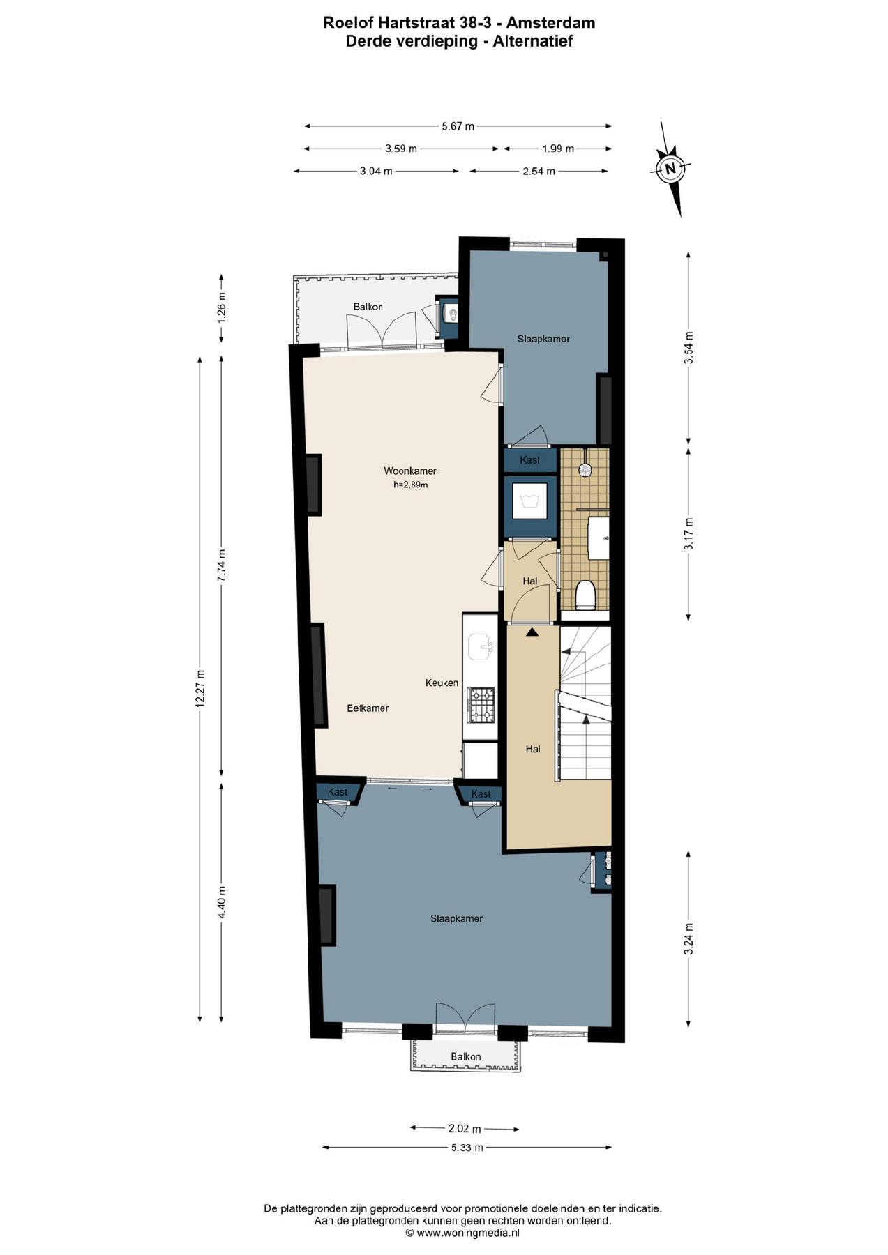
    INDELING Gemeenschappelijke entree. Appartementsingang conform splitsingsakte vanaf de overloop op de tweede verdieping. Overloop Binnenkomst in de hal die leidt naar de ruime woonkamer met open keuken. Via openslaande deuren is het balkon op het zuiden te betreden. De hoofdslaapkamer bevindt zich aan de voorzijde en heeft openslaande deuren naar een klein balkon. De tweede slaapkamer bevindt zich aan de achterzijde. De badkamer is voorzien van inloopdouche, wastafel met wastafelmeubel en toilet. Er is een berging met aansluiting voor wasmachine en droger.

    Op de vierde verdieping bevinden zich 3 extra slaapkamers waarvan er 2 een eigen keukenblok en badkamer hebben. Aan de achterzijde bevindt zich een ruim balkon. De 2 studio’s op de vierde verdieping bieden veel mogelijkheden en zijn ideaal voor studerende kinderen of eventueel (kamer-) verhuur. Na ondersplitsen (vergunningplichtig en voor rekening & risico van koper) zou de vierde verdieping ook als losse woning kunnen dienen.

    LOCATIE In deze zeer gewilde buurt zijn diverse restaurants en brasserieën. Winkelen kan in de nabijgelegen Van Baerlestraat, Beethovenstraat en de P.C. Hooftstraat. Op loopafstand het Concertgebouw, Museumplein en het Vondelpark. Het appartement ligt op een steenworp afstand van de populaire Pijp, met veel leuke uitgaansgelegenheden, winkels en de Albert Cuypmarkt. Uitstekende verbinding met het openbaar vervoer (binnen een straal van 100 meter hebben tramlijnen 3, 5, 12, 16 en 24 een halte) en de diverse uitvalswegen (ring A-10).

    BIJZONDEREDEN

    • Appartementsrecht met woonoppervlak van 136,2 m² (conform NEN 2580);
    • Diverse mogelijkheden: eventueel kamerverhuur of ondersplitsen (rekening en risico van koper);
    • 5 slaapkamers;
    • 3 balkons;
    • Gelegen op eigen grond, dus geen erfpacht;
    • VvE bijdrage €200,– per maand;
    • Kleinschalige VVE met 4 leden;
    • Er zal een standaard ouderdoms-/ asbest-/ niet zelfbewoningsclausule worden opgenomen in de koopakte;
    • Parkeren via vergunningsstelsel Gemeente Amsterdam.

    DISCLAIMER Deze informatie is door ons met de nodige zorgvuldigheid samengesteld. Onzerzijds wordt echter geen enkele aansprakelijkheid aanvaard voor enige onvolledigheid, onjuistheid of anderszins, dan wel de gevolgen daarvan. Koper heeft zijn eigen onderzoek plicht naar alle zaken die voor hem of haar van belang zijn. Met betrekking tot deze woning is de makelaar adviseur van verkoper. Wij adviseren u een deskundige (NVM-)makelaar in te schakelen die u begeleidt bij het aankoopproces. Indien u specifieke wensen heeft omtrent de woning, adviseren wij u deze tijdig kenbaar te maken aan uw aankopend makelaar en hiernaar zelfstandig onderzoek te (laten) doen. Indien u geen deskundige vertegenwoordiger inschakelt, acht u zich volgens de wet deskundige genoeg om alle zaken die van belang zijn te kunnen overzien. Van toepassing zijn de NVM voorwaarden.

    NEN CLAUSULE De gebruiksoppervlakte is berekend conform de branche vastgestelde NEN 2580- norm. De oppervlakte kan derhalve afwijken van vergelijkbare panden en/of oude referenties. Dit heeft vooral te maken met deze (nieuwe) rekenmethode. Koper verklaart voldoende te zijn geïnformeerd over de hiervoor bedoelde normering. Verkoper en diens makelaar doen hun uiterste best de juiste oppervlakte en inhoud te berekenen aan de hand van eigen metingen en dit zoveel mogelijk te ondersteunen door het plaatsen van plattegronden met maatvoering. Mocht de maatvoering onverhoopt niet (volledig) overeenkomstig de normering zijn vastgesteld, wordt dit door koper aanvaard. Koper is voldoende in de gelegenheid gesteld de maatvoering zelf te (laten) controleren. Verschillen in de opgegeven maat en grootte geven geen der partijen enig recht, zo ook niet op aanpassing van de koopsom. Verkoper en diens makelaar aanvaarden geen enkele aansprakelijkheid in deze.

    =======================================================================================

    Fantastic six-room apartment of over 136 m² (according to NEN2580) with tremendous potential, spread over two residential floors with three balconies, located on freehold land on “Duivelseiland” — one of the most sought-after neighborhoods in Amsterdam South!

    The double upper house offers various possibilities for the buyer: subdivision into separate units (permit required) or room rental are both options.

    LAYOUT Shared entrance. Apartment entrance (as per the deed of division) from the landing on the second floor. Hallway leading to the spacious living room with open kitchen. French doors open onto the south-facing balcony. The main bedroom is at the front and features French doors leading to a small balcony. The second bedroom is at the rear. The bathroom includes a walk-in shower, washbasin with vanity unit, and toilet. There is also a storage room with connections for a washing machine and dryer.

    On the fourth floor, there are three additional bedrooms, two of which have their own kitchenette and bathroom. At the rear, there is a spacious balcony. The two studio rooms on the fourth floor offer many possibilities and are ideal for students or potential (room) rentals. After subdivision (permit required and at the buyer’s expense and risk), the fourth floor could also serve as a separate dwelling.

    LOCATION This highly desirable neighborhood offers various restaurants and brasseries. Shopping is available nearby on Van Baerlestraat, Beethovenstraat, and P.C. Hooftstraat. Within walking distance are the Concertgebouw, Museumplein, and Vondelpark. The apartment is also just a stone’s throw from the popular De Pijp area, with its many bars, shops, and the famous Albert Cuyp Market. Excellent public transport connections (tram lines 3, 5, 12, 16, and 24 all stop within 100 meters) and convenient access to major roads (A10 ring road).

    PARTICULARS

    • Apartment right with a living area of 136.2 m² (according to NEN2580);
    • Various possibilities: room rental or subdivision (at buyer’s expense and risk);
    • 5 bedrooms;
    • 3 balconies;
    • Located on freehold land (no ground lease);
    • Homeowners’ association (VvE) contribution €200 per month;
    • Small-scale VvE with 4 members;
    • Standard old-age / asbestos / non-owner-occupancy clauses will be included in the purchase agreement;
    • Parking through permit system of the Municipality of Amsterdam.

    DISCLAIMER This information has been compiled by us with the necessary care. However, on our part no liability is accepted for any incompleteness, inaccuracy or otherwise, nor the consequences thereof. The buyer has his or her own obligation to investigate all matters that are of importance to him/her. With regard to this property the broker is an advisor to the seller. We advise you to employ an expert (NVM) broker who guides you during the purchase process. If you have specific wishes with regard to the property, we advise you to make this known to your purchasing broker in good time and to do research (or have research done) independently. If you do not employ an expert representative, you, according to the law, consider yourself competent enough to be able to oversee all matters that are of importance. The terms and conditions of the NVM apply.

    NEN CLAUSE The usable area is calculated in accordance with the industry adopted NEN 2580 standard. Therefore, the surface can deviate from similar properties and/or old references. This has mainly to do with this (new) calculation method. Buyer declares to have been sufficiently informed about the aforementioned standards. The seller and his broker will do their utmost to calculate the right surface area and content based on their own measurements and support this as much as possible by placing floor plans with dimensions. In the unlikely event that the dimensions are not (completely) determined in accordance with the standards, this is accepted by the buyer. The buyer has been given sufficient opportunity to check the dimensions themselves or have them checked. Differences in the specified size do not give any of the parties any right, nor can they be used to discuss an adjustment of the purchase price. The seller and his broker do not accept any liability in this.

    Maak een afspraak

    Recent bekeken