
Stadionweg 178
Amsterdam
- StatusBeschikbaar
- Vraagprijs€ 1.600.000,- k.k.
- Woonoppervlakte203 m²
- Aantal kamers5
Contact
STADIONWEG 178, 1077 TC AMSTERDAM
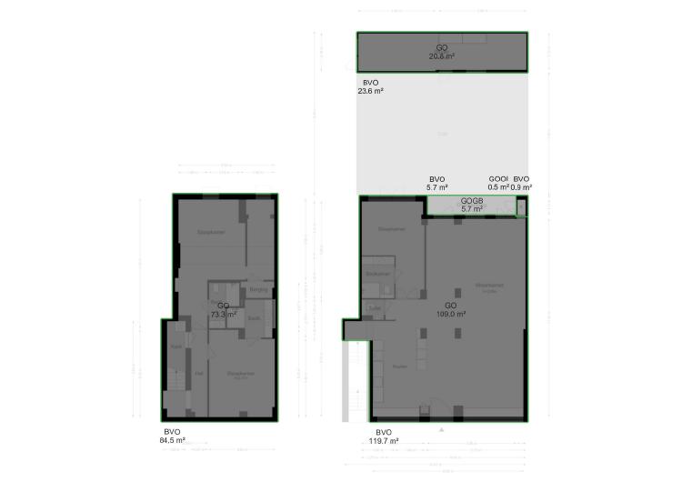
Dit exclusieve dubbel benedenhuis van ca. 203 m² combineert ruimte, luxe en karakter. De woning beschikt over drie slaapkamers, drie badkamers en een tuin inclusief tuinhuis. De volledig gerenoveerde woning is op het hoogste niveau afgewerkt en direct te betrekken.
ENGLISH VERSION BELOW
INDELING Via de entreehal komt u binnen in de riante, sfeervolle parterre. De prachtige woonkeuken op links trekt gelijk uw aandacht. Hier tegenover bevindt zich de royale eetkamer. Aan de achterzijde is de living gelegen, die met grote openslaande deuren uitnodigend toegang biedt tot de unieke tuin van ca. 67 m2. Hier is tevens het tuinhuis gesitueerd, dat uitstekend geschikt is als gastenverblijf of kantoor.
Aan de tuinzijde van de begane grond is een royale slaapkamer gelegen met eigen badkamer, voorzien van een inloopdouche, dubbele wastafel en toilet. Deze kamer biedt eveneens directe toegang tot de tuin. Op de begane grond bevindt zich tevens een gastentoilet voor extra comfort.
De keuken is ontworpen in samenwerking met Fred Constant, specialist in handgemaakte keukens in het hogere segment. Elke kast is vervaardigd uit dezelfde Franse eikenhouten boomstam, het marmer is afkomstig uit Italië. De keuken is voorzien van hoogwaardige inbouwapparatuur, waaronder een Quooker, wijnklimaatkast, Bora kookplaat en twee ovens (waarvan één combi).
De trap naar het souterrain is omgeven door spiegels die het licht spectaculair weerkaatsen en een indrukwekkend ruimtelijk effect creëren. Hier bevinden zich twee ruime slaapkamers, elk met een eigen badkamer voorzien van wastafel, inloopdouche en toilet. De stijlvolle badkamers zijn vormgegeven in samenwerking met Maasstede, uitgerust met wastafelmeubels van massief eikenhout en travertin blad. Aan de achterzijde is een praktische ruimte gecreëerd met aansluitingen voor wasmachine en droger. Beide kamers in het souterrain beschikken over daglicht.
LIGGING De woning ligt in het hart van de geliefde Stadionbuurt in Amsterdam-Zuid. Op loopafstand bevindt zich de levendige Beethovenstraat, met een aantrekkelijke mix van winkels, speciaalzaken en horecagelegenheden zoals Williams Farmhouse, Brasserie Margaux, Jondani en Bar Kaspar. Elke week brengt de buurtmarkt op het Stadionplein gezelligheid en een ruim aanbod aan verse producten. Voor de dagelijkse boodschappen zijn er diverse supermarkten in de directe omgeving. Ook voor ontspanning zit je hier perfect: het Amsterdamse Bos en het Vondelpark liggen op korte afstand, ideaal voor sport, spel en recreatie. Met de fiets ben je snel in zowel het centrum als op de Zuidas. De woning is bovendien uitstekend bereikbaar via verschillende tram- en buslijnen, en de ring A10 is eenvoudig bereikbaar via de S108.
BIJZONDERHEDEN
- Woonoppervlakte ca. 203 m² (conform NEN 2580);
- Airconditioning in elke ruimte aanwezig;
- Drie slaapkamers met elk eigen badkamer;
- Tuinhuis met water, elektra en verwarming, geschikt als studio of kantoor;
- Op maat ontworpen keuken van Fred Constant;
- Luxe afgewerkte badkamers met gebruik van hoogwaardige materialen;
- Gezonde & actieve Vereniging van Eigenaars, € 438,85 per maand;
- Voorschot stookkosten bedragen €148,- per maand;
- Volledig gerenoveerd in 2025, u bent de eerste bewoner;
- Onder voorbehoud van het verkrijgen van een wijziging splitsing;
- Erfpacht bedraagt € 2.321,24, AB 2000, huidige tijdvak loopt tot 15 juli 2055;
- Onder voorbehoud gunning verkoper;
- Project-notaris Dijkhuis Koeman;
- Oplevering in overleg en kan spoedig.
ENGLISH VERSION
This exclusive double ground floor apartment of approx. 203 m² combines space, luxury, and character. The property has three bedrooms, three bathrooms, and a garden including a garden shed. The fully renovated property has been finished to the highest standard and is ready to move into immediately.
LAYOUT The entrance hall leads into the spacious, attractive ground floor. The beautiful kitchen on the left immediately catches your eye. Opposite is the spacious dining room. At the rear is the living room, which has large French doors offering inviting access to the unique garden of approx. 67 m². The garden house is also located here, which is ideal as a guest house or office.
On the garden side of the ground floor is a spacious bedroom with its own bathroom, equipped with a walk-in shower, double sink, and toilet. This room also offers direct access to the garden. There is also a guest toilet on the ground floor for extra comfort.
The kitchen was designed in collaboration with Fred Constant, a specialist in high-end handmade kitchens. Each cabinet is made from the same French oak tree trunk, and the marble comes from Italy. The kitchen is equipped with high-quality built-in appliances, including a Quooker, wine climate cabinet, Bora hob, and two ovens (one of the ovens is a combi oven).
The staircase to the basement is surrounded by mirrors that reflect the light spectacularly and create an impressive spacious effect. Here you will find two spacious bedrooms, each with its own bathroom equipped with a sink, walk-in shower, and toilet. The stylish bathrooms were designed in collaboration with Maasstede and feature solid oak vanities with travertine countertops. A practical utility room with connections for a washing machine and dryer has been created at the rear. Both rooms in the basement have natural light.
LOCATION The property is located in the heart of the popular Stadionbuurt neighborhood in Amsterdam-Zuid. Within walking distance is the lively Beethovenstraat, with an attractive mix of shops, specialty stores, and restaurants such as Williams Farmhouse, Brasserie Margaux, Jondani, and Bar Kaspar. Every week, the neighborhood market on Stadionplein brings conviviality and a wide range of fresh products. For your daily shopping, there are several supermarkets in the immediate vicinity. This is also the perfect place to relax: the Amsterdamse Bos and Vondelpark are a short distance away, ideal for sports, games, and recreation. By bike, you can quickly reach both the city center and the Zuidas. The property is also easily accessible via various tram and bus lines, and the A10 ring road is easily accessible via the S108.
DETAILS
- Living area approx. 203 m² (in accordance with NEN 2580);
- Air conditioning in every room;
- Three bedrooms, each with its own bathroom;
- Garden shed with water, electricity, and heating, suitable as a studio or office;
- Custom-designed kitchen by Fred Constant;
- Luxuriously finished bathrooms with high-quality materials;
- Healthy & active Homeowners Association, €438.85 per month;
- Advance heating costs amount to €148 per month;
- Completely renovated in 2025, you will be the first occupant;
- Subject to obtaining a change of division;
- Ground lease is €2,321.24, AB 2000, current period runs until July 15, 2055;
- Subject to seller’s approval;
- Project notary Dijkhuis Koeman;
- Delivery in consultation and can be done soon.
DISCLAIMER Deze informatie is door ons met de nodige zorgvuldigheid samengesteld. Onzerzijds wordt echter geen enkele aansprakelijkheid aanvaard voor enige onvolledigheid, onjuistheid of anderszins, dan wel de gevolgen daarvan. Koper heeft zijn eigen onderzoek plicht naar alle zaken die voor hem of haar van belang zijn. Met betrekking tot deze woning is de makelaar adviseur van verkoper. Wij adviseren u een deskundige (NVM-)makelaar in te schakelen die u begeleidt bij het aankoopproces. Indien u specifieke wensen heeft omtrent de woning, adviseren wij u deze tijdig kenbaar te maken aan uw aankopend makelaar en hiernaar zelfstandig onderzoek te (laten) doen. Indien u geen deskundige vertegenwoordiger inschakelt, acht u zich volgens de wet deskundige genoeg om alle zaken die van belang zijn te kunnen overzien. Van toepassing zijn de NVM voorwaarden.
NEN CLAUSULE De gebruiksoppervlakte is berekend conform de branche vastgestelde NEN 2580- norm. De oppervlakte kan derhalve afwijken van vergelijkbare panden en/of oude referenties. Dit heeft vooral te maken met deze (nieuwe) rekenmethode. Koper verklaart voldoende te zijn geïnformeerd over de hiervoor bedoelde normering. Verkoper en diens makelaar doen hun uiterste best de juiste oppervlakte en inhoud te berekenen aan de hand van eigen metingen en dit zoveel mogelijk te ondersteunen door het plaatsen van plattegronden met maatvoering. Mocht de maatvoering onverhoopt niet (volledig) overeenkomstig de normering zijn vastgesteld, wordt dit door koper aanvaard. Koper is voldoende in de gelegenheid gesteld de maatvoering zelf te (laten) controleren. Verschillen in de opgegeven maat en grootte geven geen der partijen enig recht, zo ook niet op aanpassing van de koopsom. Verkoper en diens makelaar aanvaarden geen enkele aansprakelijkheid in deze.
Maak een afspraak