
Van Ostadestraat 171-2
Amsterdam
- StatusBeschikbaar
- Vraagprijs€ 490.000,- k.k.
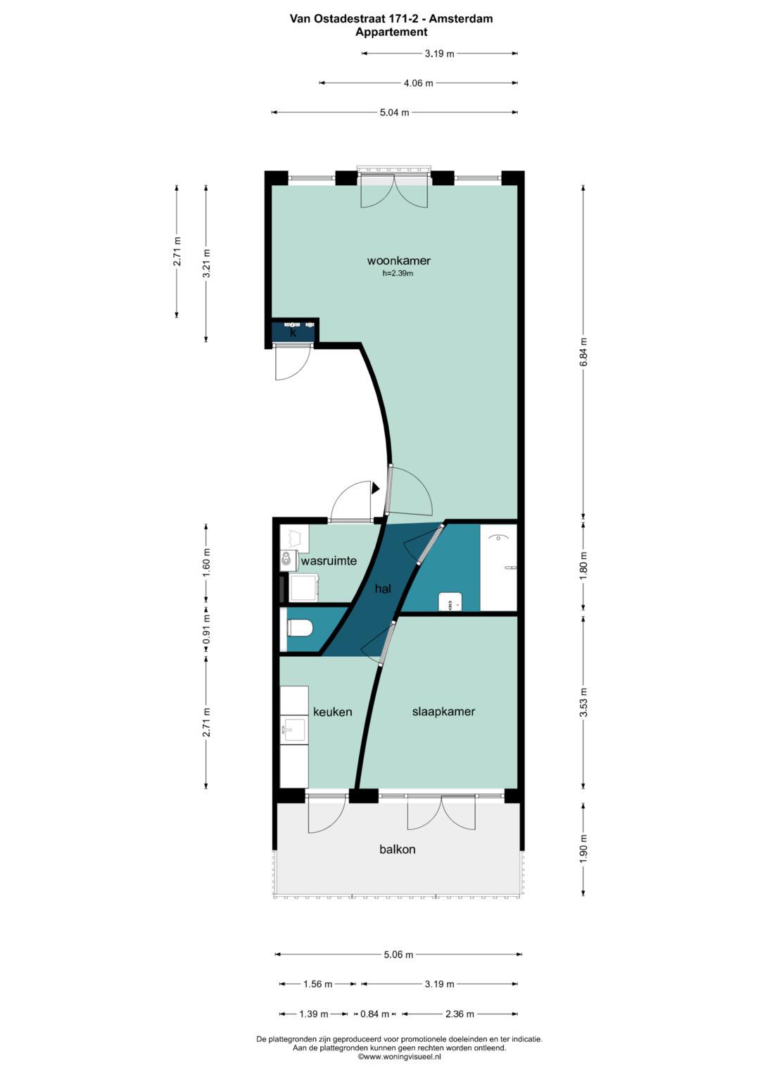
- Woonoppervlakte50 m²
- Aantal kamers2
Contact
ENGLISH TEXT BELOW
Charmant, licht én instapklaar appartement met diep terras en Frans balkon in de bruisende Pijp!
Op zoek naar een sfeervol appartement, gelegen op eigen grond, in één van de meest geliefde buurten van Amsterdam? Dit charmante en lichte 2-kamer appartement van ca. 50 m² op de tweede verdieping biedt alles wat je nodig hebt: een heerlijk brede living, een balkon aan de voorzijde én een royaal verdiept terras aan de achterzijde. Bovendien heeft het appartement nog een externe was/ bergruimte op eigen verdieping. Een woning die direct een gevoel van thuiskomen geeft!
De woning is voorzien van een houten vloer en het pand heeft een nieuwe fundering.
INDELING Bij binnenkomst valt meteen de lichte en brede woonkamer aan de voorzijde op. Drie grote ramen zorgen voor een zee aan daglicht en een charmant uitzicht op de Van Ostadestraat. Vanaf het Franse balkon heb je een gezellig doorkijkje naar de straat beneden.
Centraal in de woning vind je een separaat toilet en een ruime badkamer, voorzien van ligbad en wastafel.
Aan de rustige achterzijde bevindt zich de royale slaapkamer, die dankzij de openslaande deuren direct toegang biedt tot het diepe balkon over de volle breedte van het appartement. Hier kun je in alle rust genieten van de zon en de stilte. Ook vanuit de nette keuken, uitgerust met inbouwapparatuur, stap je zo het balkon op.
Extra praktisch is de ruime privéberging met wasmachineaansluiting, gelegen naast het appartement.
OMGEVING De Van Ostadestraat ligt in de altijd levendige Pijp, bekend om haar karakteristieke straatjes, gezellige cafés en uitstekende restaurants. Op loopafstand vind je een breed aanbod aan winkels, koffiebars en de beroemde Albert Cuypmarkt. Voor ontspanning en groen wandel je zo naar het Sarphatipark, een van de mooiste stadsparken van Amsterdam.
Qua bereikbaarheid zit je hier uitstekend: de Noord/Zuidlijn en diverse tram- en busverbindingen zijn op loopafstand, waardoor je binnen enkele minuten in het centrum of op station Zuid bent. Met de auto ben je bovendien snel de stad uit richting de A10.
Kortom Een compleet en sfeervol appartement met een ideale indeling, volop buitenruimte en een toplocatie in de Pijp. Hier woon je rustig, maar met alle levendigheid van de stad direct voor de deur.
BIJZONDERHEDEN
- Woonoppervlak ca. 50 m² conform NEN2580 meetrapport;
- Externe, eigen was/ bergruimte van circa 4 m² conform NEN2580 meetrapport;
- Riant terras aan de achterzijde;
- Frans balkon voorzijde;
- Instapklaar;
- Fundering is reeds vernieuwd;
- Gelegen op eigen grond;
- Nieuwe CV Ketel (2025);
- VvE bijdrage per maand € 100,-;
- VvE (Reserve en MJOP aanwezig);
- Energielabel C;
- De ouderdoms- en niet zelfbewonersclausule zijn van toepassing;
- Koopakte volgens ring model Amsterdam bij een Amsterdamse notaris naar keuze koper;
- Oplevering in overleg, kan snel.
Charming, bright, and move-in ready apartment with a deep terrace and French balcony in the vibrant De Pijp neighborhood!
Looking for a charming apartment, situated on a freehold plot in one of Amsterdam’s most desirable neighborhoods? This charming and bright 2-room apartment of approximately 50 m² on the second floor offers everything you need: a wonderfully spacious living room, a balcony at the front, and a spacious sunken terrace at the rear. The apartment also has an external laundry/storage room on its own floor. A home that immediately makes you feel at home!
The apartment features wooden floors and a new foundation.
LAYOUT Upon entering, the bright and spacious living room at the front immediately catches your eye. Three large windows provide a wealth of natural light and a charming view of Van Ostadestraat. From the French balcony, you have a pleasant view of the street below.
Central to the apartment are a separate toilet and a spacious bathroom with a bathtub and sink.
At the quiet rear of the apartment is the generous bedroom, which, thanks to French doors, offers direct access to the deep balcony spanning the full width of the apartment. Here you can peacefully enjoy the sun and tranquility. The neat kitchen, equipped with built-in appliances, also provides direct access to the balcony.
Adjacent to the apartment is the spacious private storage room with a washing machine connection.
AREA Van Ostadestraat is located in the ever-vibrant Pijp district, known for its charming streets, cozy cafés, and excellent restaurants. A wide range of shops, coffee bars, and the famous Albert Cuyp Market are within walking distance. For relaxation and greenery, Sarphatipark, one of Amsterdam’s most beautiful city parks, is a short walk away.
Accessibility is excellent: the North/South metro line and various tram and bus connections are within walking distance, allowing you to reach the city center or Zuid station in just a few minutes. You can also quickly leave the city by car towards the A10 motorway.
In short, A fully equipped and attractive apartment with an ideal layout, ample outdoor space, and a prime location in the Pijp. Here you’ll live in peace, yet with all the city’s vibrancy right on your doorstep.
SPECIAL FEATURES
- Living area approx. 50 m² in accordance with the NEN2580 measurement report;
- External, private laundry/storage space of approximately 4 m² in accordance with the NEN2580 measurement report;
- Spacious terrace at the rear;
- Juliet balcony at the front;
- Move-in ready;
- Foundation has already been replaced;
- Situated on freehold land;
- New central heating boiler (2025);
- Homeowners’ Association (VvE) fee per month €100;
- Homeowners’ Association (VvE) (reserve and long-term maintenance plan available);
- Energy label C;
- The age and non-occupancy clauses apply;
- Purchase agreement according to the Amsterdam ring model, presented at an Amsterdam notary of the buyer’s choice;
- Delivery by arrangement, can be done quickly.
DISCLAIMER Deze informatie is door ons met de nodige zorgvuldigheid samengesteld. Onzerzijds wordt echter geen enkele aansprakelijkheid aanvaard voor enige onvolledigheid, onjuistheid of anderszins, dan wel de gevolgen daarvan. Koper heeft zijn eigen onderzoek plicht naar alle zaken die voor hem of haar van belang zijn. Met betrekking tot deze woning is de makelaar adviseur van verkoper. Wij adviseren u een deskundige (NVM-)makelaar in te schakelen die u begeleidt bij het aankoopproces. Indien u specifieke wensen heeft omtrent de woning, adviseren wij u deze tijdig kenbaar te maken aan uw aankopend makelaar en hiernaar zelfstandig onderzoek te (laten) doen. Indien u geen deskundige vertegenwoordiger inschakelt, acht u zich volgens de wet deskundige genoeg om alle zaken die van belang zijn te kunnen overzien. Van toepassing zijn de NVM voorwaarden.
NEN CLAUSULE De gebruiksoppervlakte is berekend conform de branche vastgestelde NEN 2580- norm. De oppervlakte kan derhalve afwijken van vergelijkbare panden en/of oude referenties. Dit heeft vooral te maken met deze (nieuwe) rekenmethode. Koper verklaart voldoende te zijn geïnformeerd over de hiervoor bedoelde normering. Verkoper en diens makelaar doen hun uiterste best de juiste oppervlakte en inhoud te berekenen aan de hand van eigen metingen en dit zoveel mogelijk te ondersteunen door het plaatsen van plattegronden met maatvoering. Mocht de maatvoering onverhoopt niet (volledig) overeenkomstig de normering zijn vastgesteld, wordt dit door koper aanvaard. Koper is voldoende in de gelegenheid gesteld de maatvoering zelf te (laten) controleren. Verschillen in de opgegeven maat en grootte geven geen der partijen enig recht, zo ook niet op aanpassing van de koopsom. Verkoper en diens makelaar aanvaarden geen enkele aansprakelijkheid in deze.
DISCLAIMER This information has been compiled by us with the necessary care. However, on our part no liability is accepted for any incompleteness, inaccuracy or otherwise, nor the consequences thereof. The buyer has his or her own obligation to investigate all matters that are of importance to him/her. With regard to this property the broker is an advisor to the seller. We advise you to employ an expert (NVM) broker who guides you during the purchase process. If you have specific wishes with regard to the property, we advise you to make this known to your purchasing broker in good time and to do research (or have research done) independently. If you do not employ an expert representative, you, according to the law, consider yourself competent enough to be able to oversee all matters that are of importance. The terms and conditions of the NVM apply.
NEN CLAUSE The usable area is calculated in accordance with the industry adopted NEN 2580 standard. Therefore, the surface can deviate from similar properties and/or old references. This has mainly to do with this (new) calculation method. Buyer declares to have been sufficiently informed about the aforementioned standards. The seller and his broker will do their utmost to calculate the right surface area and content based on their own measurements and support this as much as possible by placing floor plans with dimensions. In the unlikely event that the dimensions are not (completely) determined in accordance with the standards, this is accepted by the buyer. The buyer has been given sufficient opportunity to check the dimensions themselves or have them checked. Differences in the specified size do not give any of the parties any right, nor can they be used to discuss an adjustment of the purchase price. The seller and his broker do not accept any liability in this.
Maak een afspraak