
Zocherstraat 23 E
Amsterdam
- StatusBeschikbaar
- Vraagprijs€ 2.850.000,- k.k.
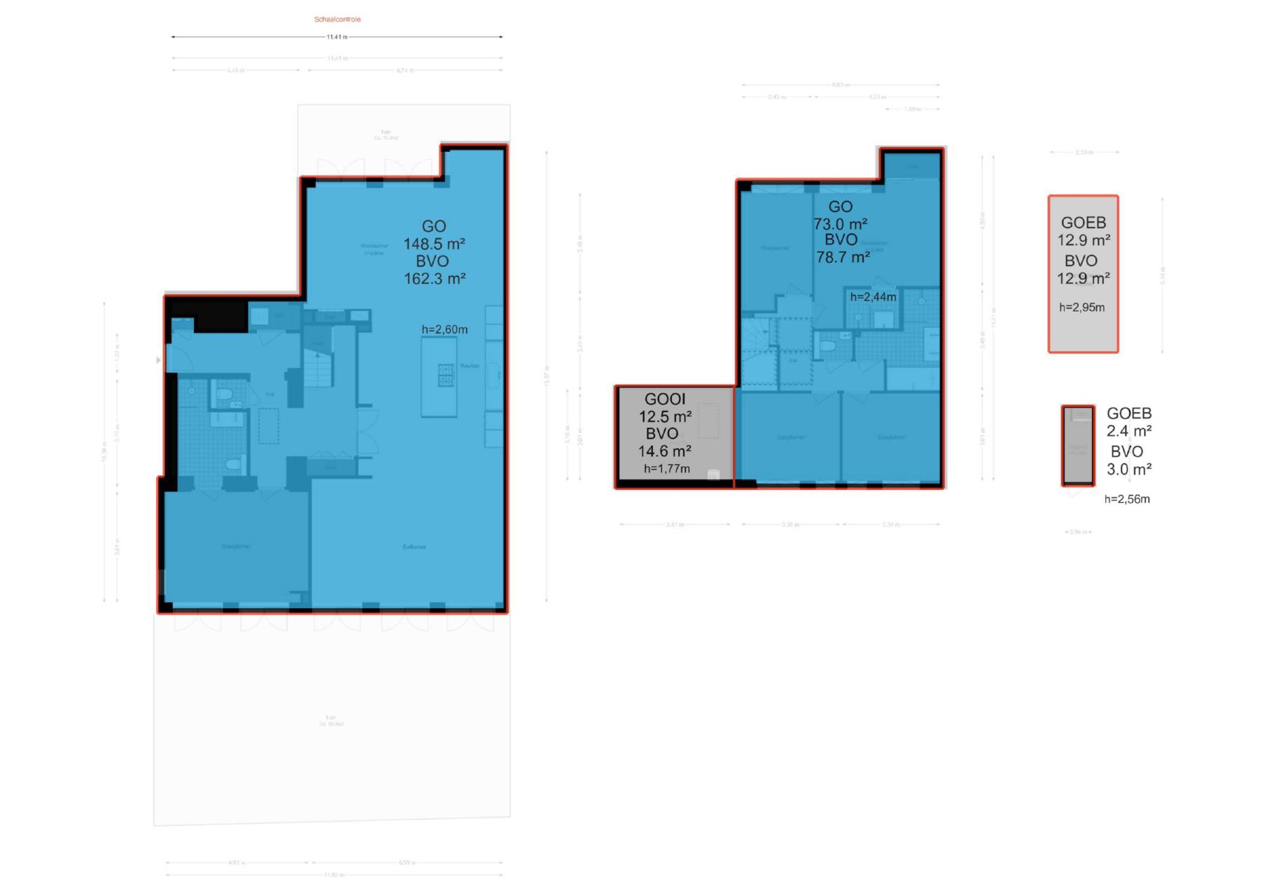
- Woonoppervlakte222 m²
- Aantal kamers6
Contact
Aan de rand van het Vondelpark dit royaal dubbel benedenhuis van ca. 222m² met vijf slaapkamers, drie badkamers en een riante tuin biedt een zeldzame kans in Amsterdam. Niet alleen vanwege de royale maatvoering en hoogwaardige afwerking, maar vooral door de ligging: via de achteruitgang loopt u zó het Vondelpark in. De woning is ondergebracht in een voormalig schoolgebouw, wat direct zorgt voor karakter en allure. Bij binnenkomst in het gebouw valt direct de indrukwekkende, ruime en lichte entree op, die de grandeur van het pand prachtig accentueert.
INDELING Via de monumentale entree van het schoolgebouw komt u bij de voordeur van de woning. Hier treft u de ruime hal van het appartement, voorzien van veel inbouwkasten en een aparte wasruimte met aansluitingen voor wasmachine en droger. Deze hal vormt het functionele én sfeervolle hart van de begane grond en leidt op natuurlijke wijze naar de overige ruimtes. Centraal in de woning ligt de royale keuken, uitgevoerd met een marmeren blad, kookeiland met bar en hoogwaardige inbouwapparatuur, waaronder dubbele koelkasten en vriezers, een wijnklimaatkast, Quooker, ingebouwde koffiezetmachine, vaatwasser en twee ovens (waarvan één combi-ovenmagnetron). De keuken vormt een harmonieus geheel met de eetkamer, waar drie brede openslaande deuren u direct naar de zonnige tuin brengen: een oase van rust in het hart van de stad. De tuin komt uit op een uniek, afgesloten hofje tussen de Zocherstraat en de Frederikstraat, op de plek waar vroeger de gymzaal en de speelplaats van het schoolgebouw gelegen waren. De woonkamer is licht en uitnodigend, met een maatwerk kastenwand en sfeervolle gashaard. Het terras naast de woonkamer benadrukt de verbondenheid met buiten. Aan de achterzijde van de begane grond bevindt zich de riante master bedroom met maatwerk kasten en een eigen badkamer, voorzien van inloopdouche, dubbele wastafel en toilet. Dubbele openslaande deuren zorgen voor een directe verbinding met de tuin.
Op de eerste verdieping bevinden zich vier slaapkamers en twee luxe badkamers. De grootste slaapkamer heeft een eigen badkamer met inloopdouche en wastafel. De tweede badkamer, gelegen op de overloop, beschikt over een ligbad, ruime dubbele inloopdouche en dubbele wastafel. Een groot dakraam zorgt hier voor een overvloed aan natuurlijk licht. De slaapkamers aan de achterkant hebben maatwerk kasten en bureau.
LIGGING De Zocherstraat is gelegen in het geliefde Oud-West, pal aan het Vondelpark en op de grens van Zuid, West en het Centrum. In de nabije omgeving vindt u een rijk aanbod aan winkels, traiteurs, koffiezaken, restaurants en terrassen, onder meer aan de Amstelveenseweg, Overtoom en Jan Pieter Heijestraat. Voor sport en ontspanning ligt niet alleen het Vondelpark letterlijk aan de achterdeur, maar ook Tennisclub Kattenlaan en sportschool David Lloyd zijn binnen enkele minuten bereikbaar. Zeer rustige ligging tussen 2 straten combineert wonen midden in de stad met ruimte en rust. Bij het hofje spelen de kinderen van de buren samen, wordt er gebarbecued of geborreld. De bereikbaarheid is uitstekend: tramlijnen 1 en 7 liggen op loopafstand en via de S106 bereikt u binnen enkele minuten de Ring A10. Binnen 15 minuten bent u op Schiphol.
PARKEERGELEGENHEID Bij de woning behoort een parkeerplaats die separaat te koop wordt aangeboden voor € 120.000,-.
BIJZONDERHEDEN
- Woonoppervlakte ca. 222m² (conform NEN2580);
- Monumentaal schoolgebouw;
- Directe entree vanuit het Vondelpark;
- Royale keuken met kookeiland en hoogwaardige inbouwapparatuur;
- Vijf slaapkamers en drie badkamers;
- Energielabel A;
- Gelegen op eigen grond;
- VvE-bijdrage woning: € 598,65 per maand;
- VvE-bijdrage parkeerplaats: € 45,23 per maand;
- Veel lichtinval door grote raampartijen en dakraam;
- Indrukwekkende entree bij binnenkomst;
- Parkeerplaats separaat te koop voor € 120.000,-;
- Gelegen op een absolute toplocatie in Oud-West;
- Oplevering in overleg.