
Herengracht 6
Purmerend
- StatusBeschikbaar
- Vraagprijs€ 890.000,- k.k.
- Woonoppervlakte267 m²
- Aantal kamers12
Contact
HERENGRACHT 6, PURMEREND
Met trots presenteren wij dit royale herenhuis aan de Herengracht in Purmerend. Met een woonoppervlak van circa 267 m² (NEN 2580), een schitterende tuin en een overvloed aan mogelijkheden. Het huis ademt grandeur en valt direct op door de monumentale, karakteristieke gevel die het straatbeeld aan de mooiste gracht van Purmerend siert. Een buitenkans voor wie ruimte, sfeer en historie zoekt, met de levendigheid van de stad en de nabijheid van Amsterdam binnen handbereik.
ENGLISH VERSION BELOW
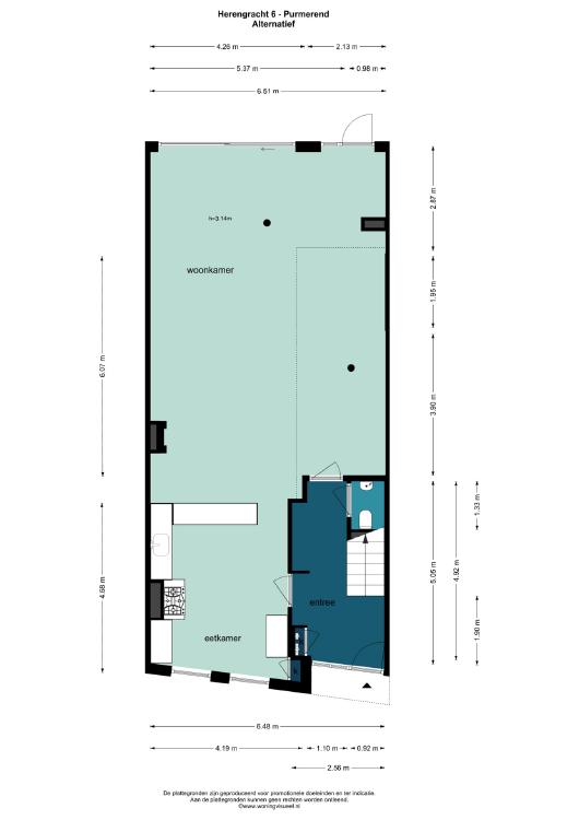
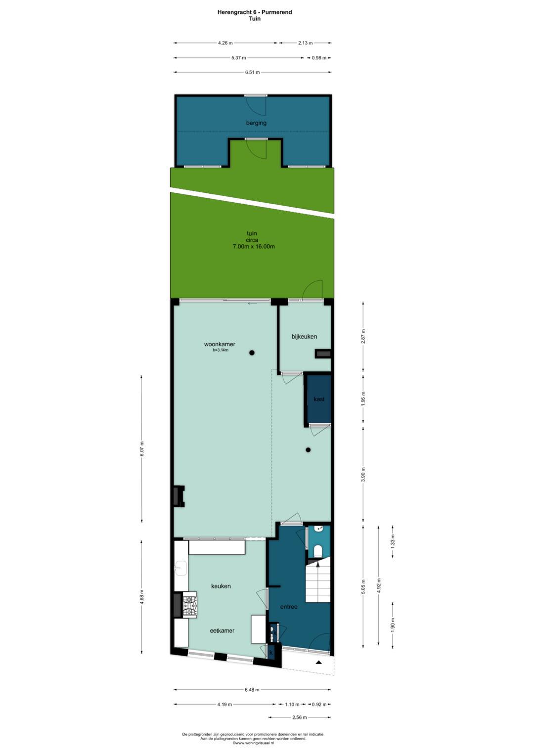
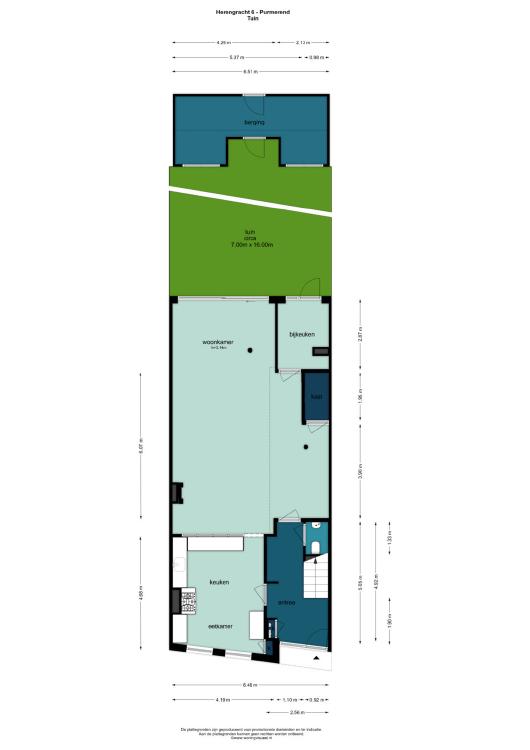
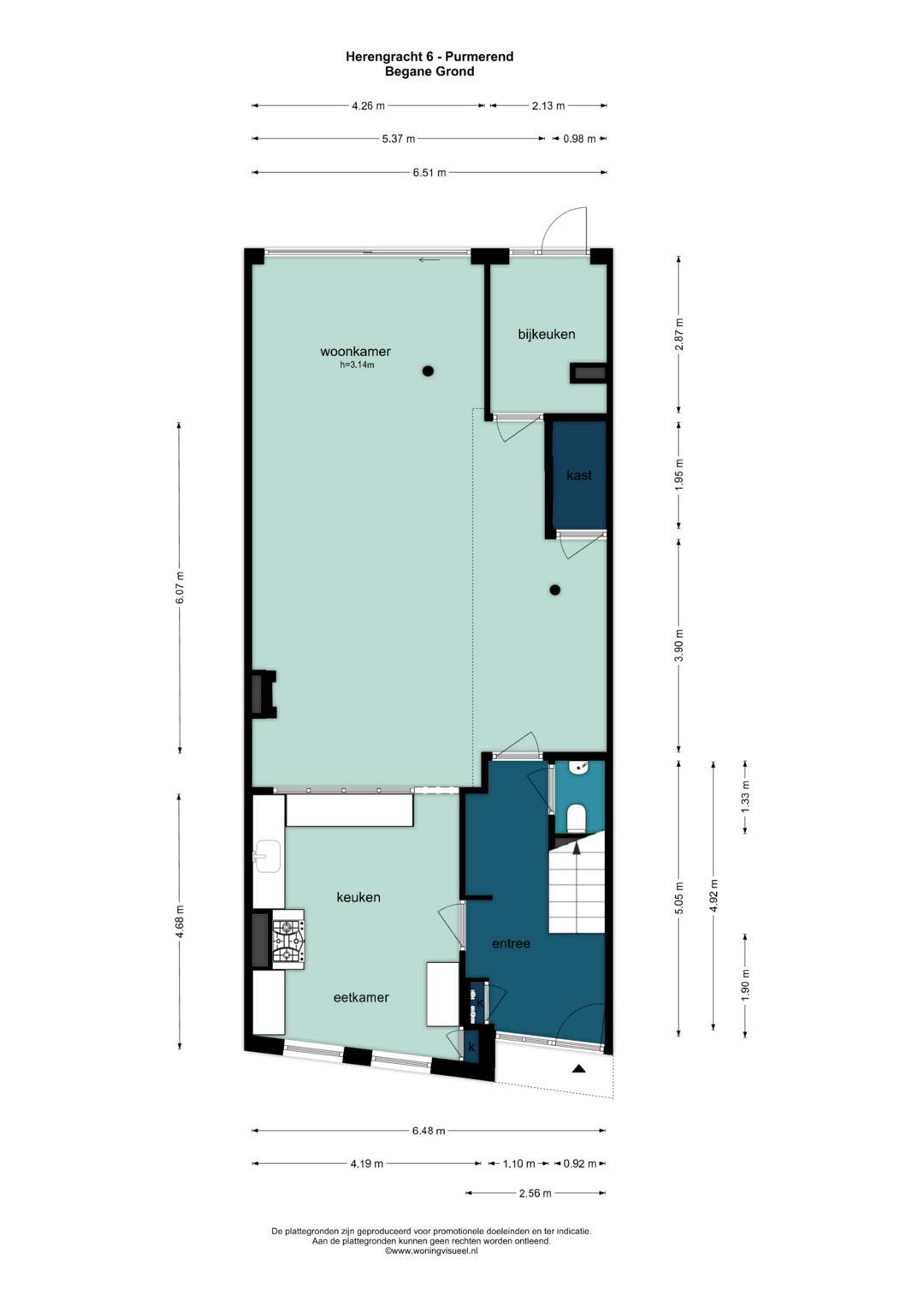
INDELING Op de begane grond betreedt u de woning via een ruime entree met garderobe en separaat toilet. Aan de achterzijde bevindt zich de royale woonkamer, waar een sfeervolle openhaard zorgt voor warmte en gezelligheid, en de brede glazen pui een prachtig uitzicht biedt op de tuin, waardoor binnen en buiten naadloos in elkaar overlopen. Deze tuin op het zuidwesten is schitterend aangelegd. Hier kunt u vrijwel de hele dag van de zon genieten. De overdekte en met seringen begroeide pergola is een heerlijke hide away als het een keer regent en u toch lekker buiten wilt zitten. De keuken biedt een prachtig uitzicht over een parkachtige omgeving. Achterin staat een vrijstaande schuur die eenvoudig kan worden omgetoverd tot buitenkeuken en een loungeplek, terwijl het achterom de mogelijkheid biedt om met de auto achter het huis te komen.
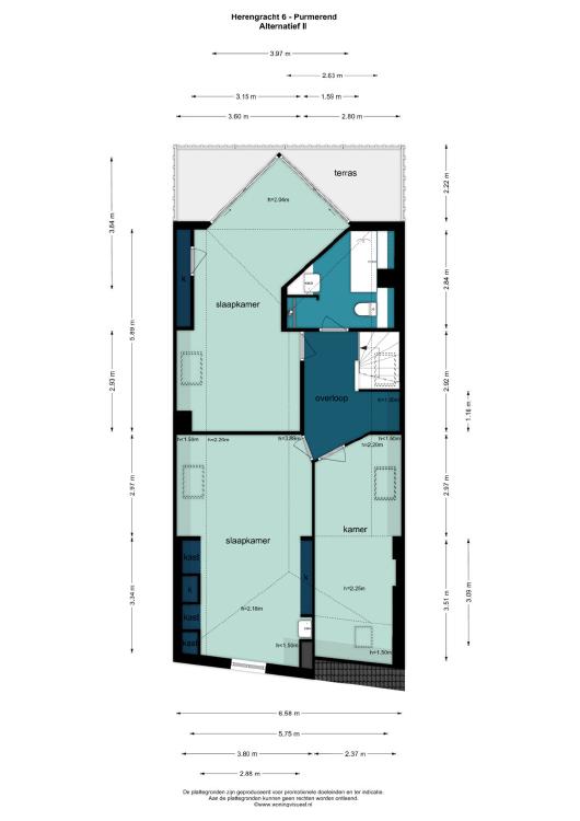
De eerste verdieping beschikt over een royale overloop die toegang geeft tot meerdere kamers. Een van de mooiste ruimtes van het huis is de kamer aan de voorzijde, ooit in gebruik als werkkamer, met een erker die rondom lichtinval geeft en een schitterend uitzicht op de Herengracht. Aan de achterzijde ligt een ruime slaapkamer die uitkijkt over de tuin. De tussenkamers met schuine wanden zijn nu eenvoudig opnieuw in te delen, bijvoorbeeld als extra badkamer of inloopkast. De bestaande badkamer met douche, toilet en wastafel bevindt zich separaat op deze verdieping.
De tweede verdieping verrast met een enorme hoeveelheid ruimte en een glazen pui aan de achterzijde die zorgt voor een overvloed aan natuurlijk licht. Het is een ideale etage om volledig naar eigen wens vorm te geven: als kinderetage met een aparte kamer voor een au pair of juist als atelierruimte met fenomenaal licht. Er is bovendien een tweede badkamer aanwezig met ligbad, douche, toilet en wastafel.
Dit herenhuis biedt een scala aan mogelijkheden om te transformeren tot een heerlijk familiehuis met ruimte voor een au pair, een combinatie van wonen en werken, atelier of creatieve studio.
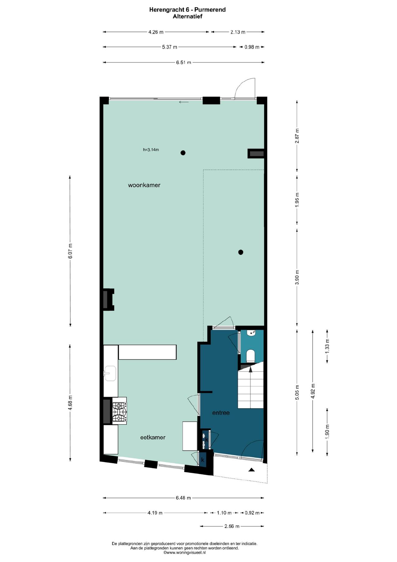
MOGELIJKHEDEN Het herenhuis biedt ongekende mogelijkheden om het volledig naar eigen wens te transformeren. In het meetrapport en op de alternatieve plattegronden zijn diverse indelingen uitgewerkt om een indruk te geven van het potentieel. Op de begane grond kan de bijkeuken worden verwijderd en de muur tussen keuken en woonkamer opengebroken, waardoor een royale open woonkeuken en living ontstaat. Op de eerste verdieping biedt de ruimte van de tussenkamers de kans om twee aparte badkamers te realiseren, zodat iedere slaapkamer zijn eigen badkamer heeft. De kamer rechts achterin kan worden ingericht als royale inloopkast voor een master bedroom. De tweede verdieping is bij uitstek geschikt om drie goed ingedeelde en ruime slaapkamers te creëren, maar het kan net zo gemakkelijk worden omgetoverd tot een master suite met vrijstaand bad en inpandig balkon of een licht atelier. Met deze flexibiliteit is het huis ideaal als heerlijk familiehuis, met desgewenst plaats voor een au pair, of voor wie wonen en werken wil combineren aan huis, in de regio, Amsterdam of Het Gooi. Het biedt de mogelijkheid voor een atelier, voor tuinliefhebbers of voor iedereen die wil genieten van de rust van Waterland, de gezelligheid van een historisch stadje en tegelijkertijd de nabijheid van Amsterdam. Renderingen en alternatieve indelingen laten zien hoe dit prachtige pand kan worden aangepast om een droomhuis te creëren, waarin sfeer, ruimte en licht maximaal tot hun recht komen.
LIGGING De woning aan de Herengracht in Purmerend bevindt zich in een rustige en groene omgeving met karakteristieke gevels, terwijl alle voorzieningen op korte loopafstand liggen. Winkels, boetieks en gezellige straten zoals de Koemarkt, Van Wijkstraat en Middenbeemsterstraat bieden volop mogelijkheden om te shoppen of een terrasje te pakken. Ook het theater en diverse restaurants, zoals Brasa Bar & Kitchen en Fenicie, liggen dichtbij. Voor ontspanning zijn het Markermeer, de omliggende parken en sportvoorzieningen eenvoudig bereikbaar. Tegelijkertijd is de bereikbaarheid uitstekend: de uitvalswegen naar Amsterdam, Zaandam en Hoorn zijn dichtbij, en bus 305 vertrekt direct achter het huis, waarmee u binnen circa 25 minuten in Amsterdam bent.
BIJZONDERHEDEN
- Woonoppervlak ca. 267 m² conform NEN 2580 meetrapport (rapport beschikbaar);
- Ruime achtertuin van ca. 110 m² met berging (ca. 15 m²) en achterom;
- Twee badkamers, separaat toilet op de begane grond;
- Dakterras van ca. 11 m² met fraai uitzicht;
- Maar liefst 6 slaapkamers + extra werkkamer/bergruimte;
- Volledig naar eigen smaak te moderniseren en in te delen;
- Alternatieve indelingen uitgewerkt (plattegronden beschikbaar);
- Gelegen in het centrum van Purmerend, alle voorzieningen op loopafstand;
- Clausules die worden opgenomen in de koopakte: Ouderdoms-, niet bewoners- en asbestclausule;
- Koopakte model ring Amsterdam bij een goed bekend staand Amsterdams kantoor. Keuze koper;
- Oplevering in overleg.
*ENGLISH VERSION
We are proud to present this spacious mansion on Herengracht in Purmerend. With a living area of approximately 267 m² (NEN 2580), a beautiful garden, and an abundance of possibilities. The house exudes grandeur and immediately stands out thanks to its monumental, characteristic facade that adorns the streetscape on Purmerend’s most beautiful canal. A unique opportunity for those seeking space, atmosphere, and history, with the liveliness of the city and the proximity of Amsterdam within easy reach.
LAYOUT On the ground floor, you enter the apartment through a spacious entrance hall with a cloakroom and separate toilet. At the rear is the spacious living room, where an attractive fireplace provides warmth and cosiness, and the wide glass front offers a beautiful view of the garden, allowing the indoors and outdoors to blend seamlessly. This south-west facing garden is beautifully landscaped. Here you can enjoy the sun almost all day long. The covered pergola, covered with lilacs, is a wonderful hideaway when it rains and you still want to sit outside. The kitchen offers a beautiful view of the park-like surroundings. At the rear is a detached shed that can easily be converted into an outdoor kitchen and lounge area, while the back entrance allows you to drive behind the house.
The first floor features a spacious landing that provides access to several rooms. One of the most beautiful rooms in the house is the front room, once used as a study, with a bay window that provides light all around and a magnificent view of the Herengracht. At the rear is a spacious bedroom overlooking the garden. The intermediate rooms with sloping walls can now be easily redesigned, for example as an extra bathroom or walk-in closet. The existing bathroom with shower, toilet, and sink is located separately on this floor.
The second floor surprises with an enormous amount of space and a glass front at the rear that provides an abundance of natural light. It is an ideal floor to design entirely according to your own wishes: as a children’s floor with a separate room for an au pair or as a studio space with phenomenal light. There is also a second bathroom with a bathtub, shower, toilet, and sink.
This mansion offers a range of possibilities for transformation into a wonderful family home with space for an au pair, a combination of living and working, a studio, or a creative studio.
POSSIBILITIES The mansion offers unprecedented opportunities to transform it entirely to your own liking. Various layouts have been worked out in the measurement report and on the alternative floor plans to give an impression of the potential. On the ground floor, the utility room can be removed and the wall between the kitchen and living room knocked down, creating a spacious open-plan kitchen and living room. On the first floor, the space between the rooms offers the opportunity to create two separate bathrooms, so that each bedroom has its own bathroom. The room at the back right can be converted into a spacious walk-in closet for a master bedroom. The second floor is ideal for creating three well-designed and spacious bedrooms, but it can just as easily be transformed into a master suite with a freestanding bathtub and indoor balcony or a bright studio. With this flexibility, the house is ideal as a wonderful family home, with room for an au pair if desired, or for those who want to combine living and working at home, in the region, Amsterdam, or Het Gooi. It offers the possibility for a studio, for garden lovers or for anyone who wants to enjoy the tranquility of Waterland, the cosiness of a historic town and at the same time the proximity of Amsterdam. Renderings and alternative layouts show how this beautiful property can be adapted to create a dream home, in which atmosphere, space and light are maximized.
LOCATION The apartment on Herengracht in Purmerend is located in a quiet and green area with characteristic facades, while all amenities are within walking distance. Shops, boutiques, and lively streets such as Koemarkt, Van Wijkstraat, and Middenbeemsterstraat offer plenty of opportunities for shopping or enjoying a drink on a terrace. The theater and various restaurants, such as Brasa Bar & Kitchen and Fenicie, are also nearby. For relaxation, the Markermeer, the surrounding parks, and sports facilities are easily accessible. At the same time, accessibility is excellent: the highways to Amsterdam, Zaandam, and Hoorn are nearby, and bus 305 departs directly behind the house, taking you to Amsterdam in approximately 25 minutes.
DETAILS
- Living area approx. 267 m² in accordance with NEN 2580 measurement report (report available);
- Spacious backyard of approx. 110 m² with storage shed (approx. 15 m²) and back entrance;
- Two bathrooms, separate toilet on the ground floor;
- Roof terrace of approx. 11 m² with beautiful views;
- No fewer than 6 bedrooms + extra study/storage space;
- Can be modernized and arranged entirely to your own taste;
- Alternative layouts worked out (floor plans available);
- Located in the center of Purmerend, all amenities within walking distance;
- Clauses to be included in the deed of sale: Age, non-resident, and asbestos clauses;
- Deed of sale model ring Amsterdam at a well-known Amsterdam office. Buyer’s choice;
- Delivery in consultation.
DISCLAIMER Deze informatie is door ons met de nodige zorgvuldigheid samengesteld. Onzerzijds wordt echter geen enkele aansprakelijkheid aanvaard voor enige onvolledigheid, onjuistheden of anderszins, dan wel de gevolgen daarvan. Koper heeft zijn eigen onderzoek plicht naar alle zaken die voor hem of haar van belang zijn. Met betrekking tot deze woning is de makelaar adviseur van verkoper. Wij adviseren u een deskundige (NVM-)makelaar in te schakelen die u begeleidt bij het aankoopproces. Indien u specifieke wensen heeft omtrent de woning, adviseren wij u deze tijdig kenbaar te maken aan uw aankopend makelaar en hiernaar zelfstandig onderzoek te (laten) doen. Indien u geen deskundige vertegenwoordiger inschakelt, acht u zich volgens de wet deskundige genoeg om alle zaken die van belang zijn te kunnen overzien. Van toepassing zijn de NVM voorwaarden.
NEN CLAUSULE De gebruiksoppervlakte is berekend conform de branche vastgestelde NEN 2580- norm. De oppervlakte kan derhalve afwijken van vergelijkbare panden en/of oude referenties. Dit heeft vooral te maken met deze (nieuwe) rekenmethode. Koper verklaart voldoende te zijn geïnformeerd over de hiervoor bedoelde normering. Verkoper en diens makelaar doen hun uiterste best de juiste oppervlakte en inhoud te berekenen aan de hand van eigen metingen en dit zoveel mogelijk te ondersteunen door het plaatsen van plattegronden met maatvoering. Mocht de maatvoering onverhoopt niet (volledig) overeenkomstig de normering zijn vastgesteld, wordt dit door koper aanvaard. Koper is voldoende in de gelegenheid gesteld de maatvoering zelf te (laten) controleren. Verschillen in de opgegeven maat en grootte geven geen der partijen enig recht, zo ook niet op aanpassing van de koopsom. Verkoper en diens makelaar aanvaarden geen enkele aansprakelijkheid in deze.
Maak een afspraak